Johnston Office/Medical For Lease or Sale 6105 Northwest 86th Street
Johnston, IA 50131
For Sale/Lease
4,259 sqft
Sale Price
Contact Broker For Pricing
Lease Price
Contact Broker For Pricing
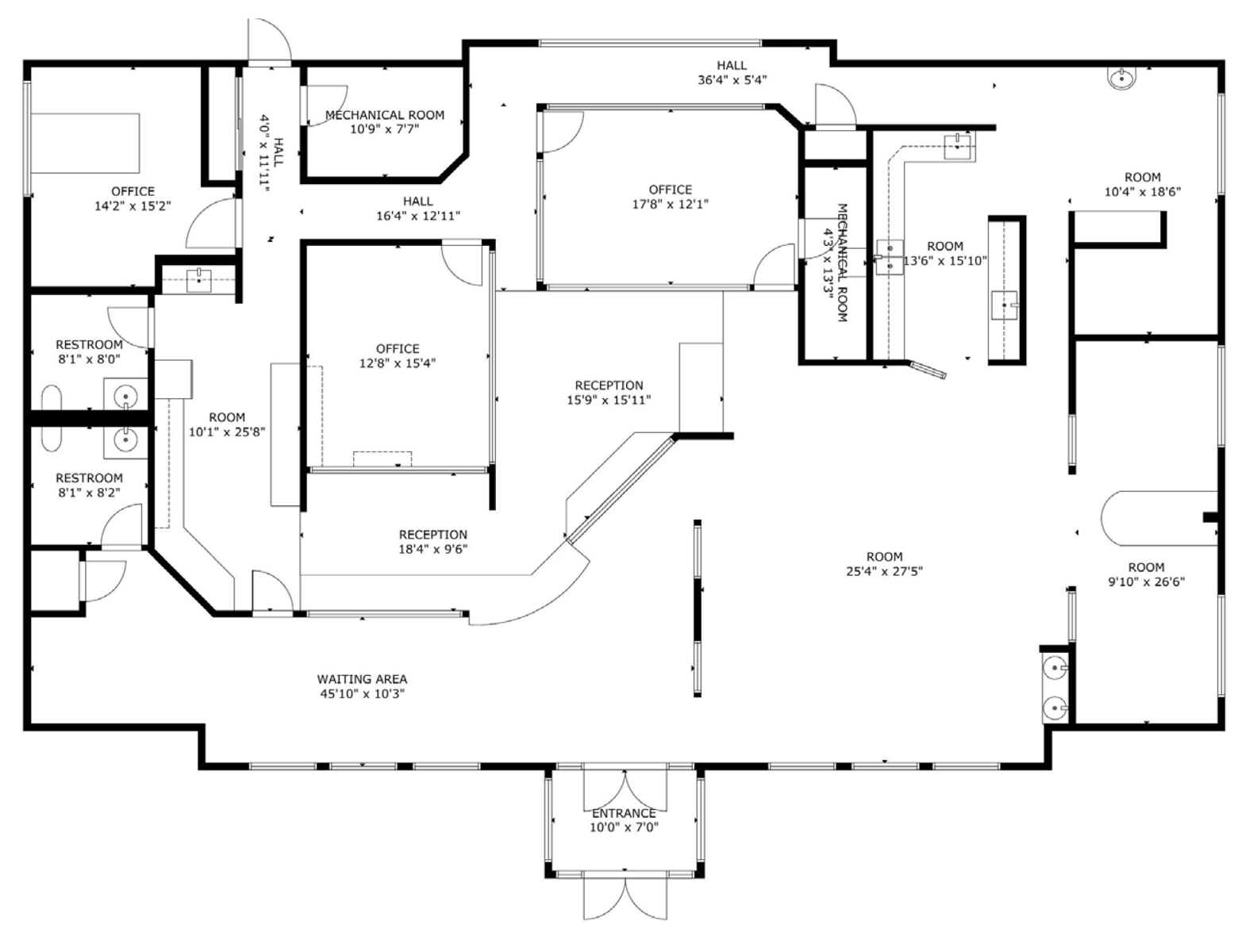
View Floor Plans
Brochure
Map
Office For Sale/Lease - Available April 2026
Potential for drive-thru
Estimated 50 +/- parking spaces
Building signage
Surrounded by established residential neighborhoods
Get in touch
Bill Wright
Chris Pendroy CCIM, SIOR
Grant Wright, CCIM
Dakota Little
This well-maintained property is situated on 1.93 acres and is adjacent to John
Deere Financial, Corteva Agriscience, Regus Co-working offices. The building‘s desirable attributes include ample on-site parking, a drive-thru capability, and existing infrastructure in place for a medical or office tenant.
Deere Financial, Corteva Agriscience, Regus Co-working offices. The building‘s desirable attributes include ample on-site parking, a drive-thru capability, and existing infrastructure in place for a medical or office tenant.
Medical/Professional office space available for lease in the growing community of Johnston, located on the corner of 86th Street and NW 62nd Avenue.
Total Space Available
4,259 sqft
Lease Type
Direct
Sale Price
Contact Broker For Pricing
Lease Rate
Contact Broker For Pricing
Lease Rate Type
Triple Net (NNN)
Get in touch
Bill Wright
Chris Pendroy CCIM, SIOR
Grant Wright, CCIM
Dakota Little