7031 Commerce Circle
Baton Rouge, LA 70809
For Lease
27,158 sqft
Lease Price
$28/sqft/yr
View Floor Plans
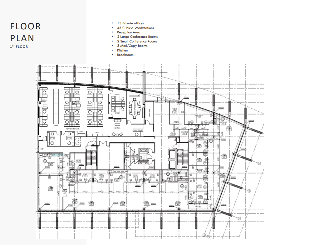
1st floor plan- republic finance
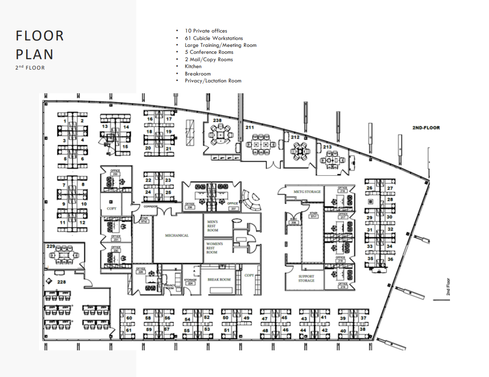
2nd floor plan- republic finance
Brochure
Property Website
Map
Office For Lease - Available January 2026
± 27,158 SF Office Building Available for Sublease:
Get in touch
Jake Loach
Jonann Stutzman
Michael Cashio
2-story Class A Office Building ; Open to leasing individual floors separately
Building includes 23 private offices around the interior of the building with open area cubicle space surrounding the exterior of each floor to help increase the natural light.
Property features an elevator, multiple training room, large kitchen and multiple conference rooms varying in size.
Furniture to Remain
Ample Parking - ±99 parking spaces
Tenant responsible for Janitorial Services; Lease ends 6/30/2037
Building includes 23 private offices around the interior of the building with open area cubicle space surrounding the exterior of each floor to help increase the natural light.
Property features an elevator, multiple training room, large kitchen and multiple conference rooms varying in size.
Furniture to Remain
Ample Parking - ±99 parking spaces
Tenant responsible for Janitorial Services; Lease ends 6/30/2037
This property is well situated in Baton Rouge just off Corporate Blvd. This property is adjacent to Towne Center, one of the premier shopping centers in the Baton Rouge area. This provides ease of access to multiple restaurants and shops including Whole Foods, Newks, Flemings, PF Changs and many more.
Total Space Available
27,158 sqft
Lease Type
SubLease
Lease Rate
$28/sqft/yr
Get in touch
Jake Loach
Jonann Stutzman
Michael Cashio