2501 E Elm Street 2501 East Elm Street
Tucson, AZ 85716
For Sale
10,980 sqft
Sale Price
$950,000
View Floor Plans
Brochure
Map
Office For Sale - Available February 2026
±10,980 SF Medical/R&D/Office/Retail Building For Sale
Abundant amenities located within a 1-mile radius of property
Free standing building
Shell condition
Ample parking on property
Property use also zoned for R&D, Retail, or Office
Get in touch
Jason Shaltiel
Building Size: ±10,980 SF
Sale Price: $950,000
Year Built: 1970
Assessor Parcel no.: 123-02-288A
Zoning: C-1, City of Tucson
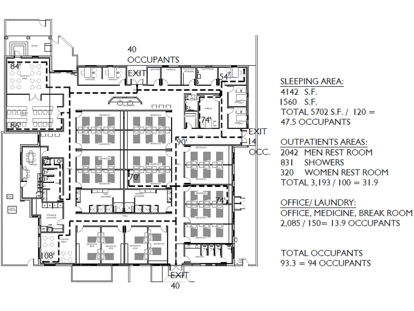
Zoning and approved building plans in place to build out an inpatient drug and alcohol treatment center for 47 beds
Parking: ±37 spaces
Sale Price: $950,000
Year Built: 1970
Assessor Parcel no.: 123-02-288A
Zoning: C-1, City of Tucson
Zoning and approved building plans in place to build out an inpatient drug and alcohol treatment center for 47 beds
Parking: ±37 spaces
Located near University of AZ in historic Blenman Elm neighborhood.
Total Space Available
10,980 sqft
Sale Price
$950,000
Get in touch
Jason Shaltiel