9111 Cypress Waters 9111 Cypress Waters Boulevard

Coppell, TX 75019

For Lease

4,781 sqft

Lease Price

Contact Broker For Pricing
View Floor Plans
Brochure
Map
Office For Lease - Available February 2026
4,781 SF Class A Office Space Available
Get in touch
Daniel Prescott
Daniel Prescott
Doug Carignan
Lic: 474212
Doug Carignan
9111 Cypress Waters is a 217,000 square foot, class A office building located in Coppell, TX
Easy ingress to and egress from LBJ Freeway and S Beltline Road, a quick five minute drive is DFW International Airport, and nearby, Southlake and Irving.

Minimum Space Available

4,781 sqft

Total Space Available

4,781 sqft

Lease Type

SubLease

Lease Rate

Contact Broker For Pricing

Lease Rate Type

Triple Net (NNN)
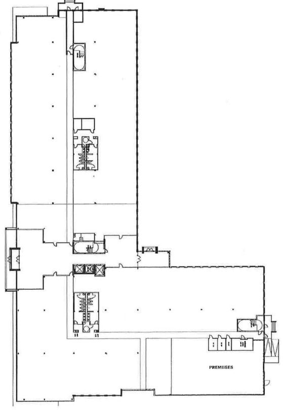
Floorplan
Get in touch
Daniel Prescott
Daniel Prescott
Doug Carignan
Lic: 474212
Doug Carignan