896 Asylum Avenue 896 Asylum Avenue
Hartford, CT 06105
For Sale
14,550 sqft
Sale Price
$875,000
View Floor Plans
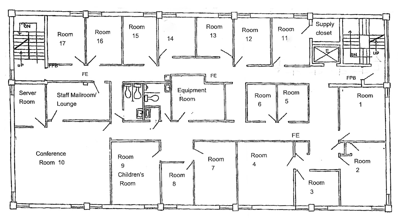
3rd Floor Plan
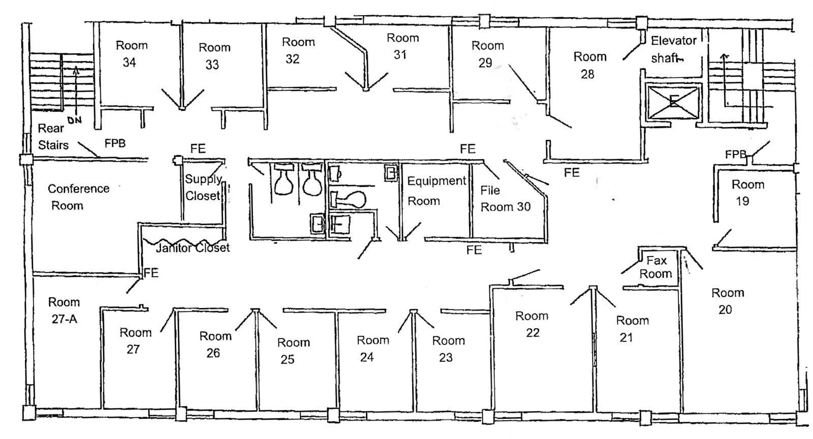
2nd Floor Plan
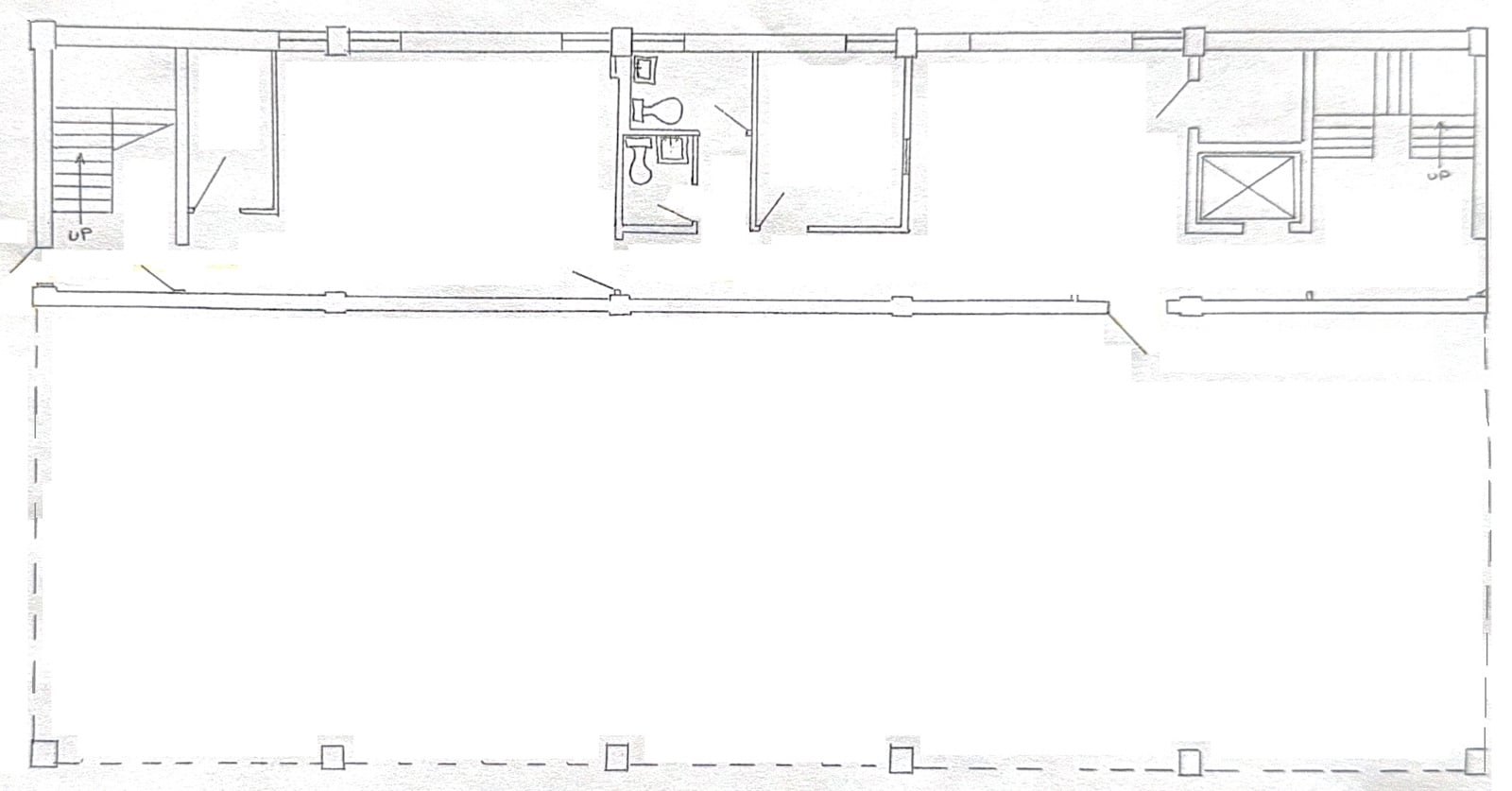
GROUNA FLOOR PLAN-CLEAN - 896 Asylum
Brochure
Map
Office For Sale - Available February 2026
Ideal for Professional Office, Non-Profit or Potential Conversion to Multifamily
Get in touch
Alexis Augsberger
AA
John McCormick
Anna Kocsondy
CBRE, Inc. (Connecticut – Hartford)
CI(–H
CBRE is pleased to offer for sale 896 Asylum Avenue, a three-story brick office building measuring 14,550 Sq.Ft. The property is located on a small 0.36-acre site in the Asylum Hill neighborhood of Hartford, Connecticut, minutes from the CBD and less than a 1/4-mile from Interstate 84 via Exits 47 and 48.
896 Asylum Avenue was formerly occupied by the Catholic Charities, but is now vacant - aside from a small short-term tenancy expiring November 2026. The building is zoned MX-1, presenting an opportunity for a mid-sized office/medical office, civic or non-profit office user seeking a location close to downtown Hartford and/or area medical facilities. Immediate neighbors within the surrounding area include Jumoke Academy, both Aetna and The Hartford's corporate office headquarters, St. Francis Medical Center, Trinity Health of New England, several churches, and a number of non-profits including Boys & Girls Club of Hartford and CPTV.
896 Asylum Avenue was formerly occupied by the Catholic Charities, but is now vacant - aside from a small short-term tenancy expiring November 2026. The building is zoned MX-1, presenting an opportunity for a mid-sized office/medical office, civic or non-profit office user seeking a location close to downtown Hartford and/or area medical facilities. Immediate neighbors within the surrounding area include Jumoke Academy, both Aetna and The Hartford's corporate office headquarters, St. Francis Medical Center, Trinity Health of New England, several churches, and a number of non-profits including Boys & Girls Club of Hartford and CPTV.
Total Space Available
14,550 sqft
Sale Price
$875,000
Highway
I-84
0.2 miles
Get in touch
Alexis Augsberger
AA
John McCormick
Anna Kocsondy
CBRE, Inc. (Connecticut – Hartford)
CI(–H