Lincoln Tower 406 U.S. 60

Bartlesville, OK 74003

For Lease

27,000 sqft

Lease Price

$15/sqft/yr
View Floor Plans
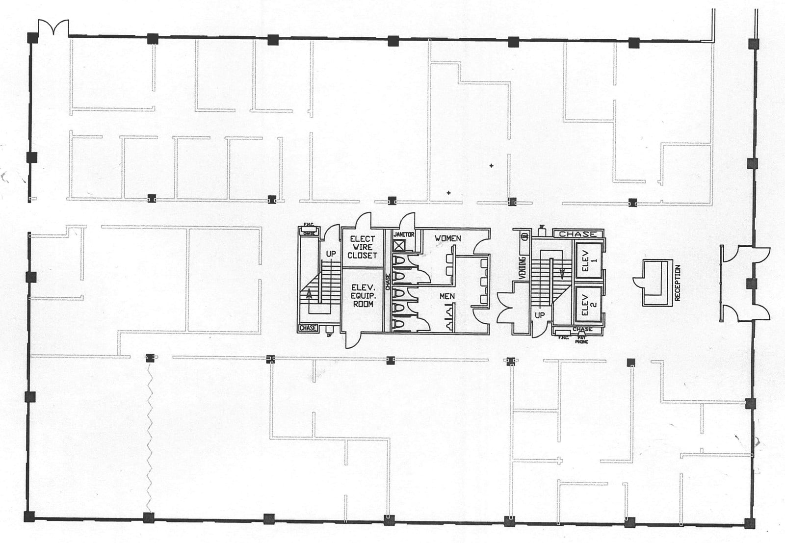
1st Floor Plan
2nd Floor Plan
Conceptual Floor Plan
Brochure
Map
Office For Lease - Available Immediately
Now available for the first time in years, the newly re-branded “Lincoln Tower” is now offered for Lease.
Up to 27,000± SF
1st Floor - 13,000± SF*
2nd Floor - 14,000± SF*
*Floors are Divisible
300± Parking Spaces across the Property
Tenant Improvement Allowance is Negotiable
Signage is Available
Updated Common Lobby Area
Building Access Control System
Get in touch
Dwayne Flynn
Dwayne Flynn
Ryan Shaffer
Ryan Shaffer
All building infrastructure, including elevators, restrooms and staircases, are located in the center of the building, allowing a wide variety of configurations.
Located adjacent to the Bartlesville Municipal Airport and directly north of the Phillips 66 Headquarters, the property is just 2 miles west of historic downtown Bartlesville.

Total Space Available

27,000 sqft

Lease Type

Direct

Lease Rate

$15/sqft/yr

Lease Rate Type

Full Service Gross (FSG)
1st Floor Plan
2nd Floor Plan
Get in touch
Dwayne Flynn
Dwayne Flynn
Ryan Shaffer
Ryan Shaffer