3112 Mokihana St | For Lease 3112 Mokihana Street

Honolulu, HI 96816

Lease Price

Contact Broker For Pricing
View Floor Plans
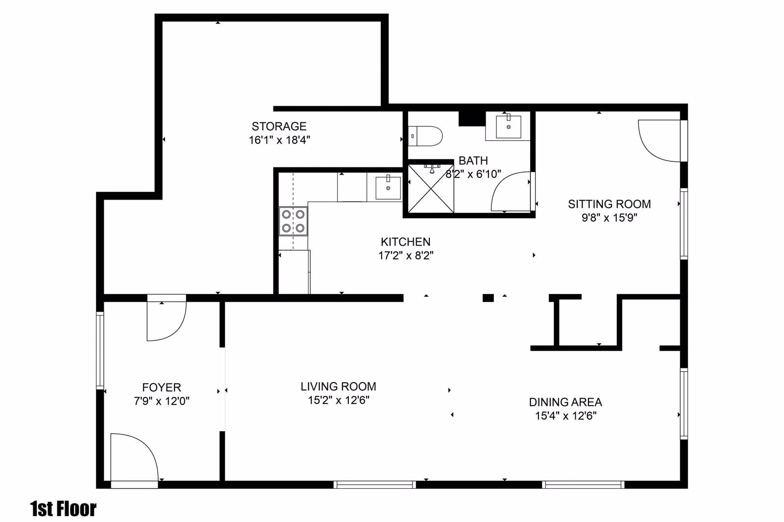
lower floor plan
upper floor plan
Brochure
Map
Office For Lease - Available April 2026
Office Space For Lease
Newly renovated
Get in touch
Andrew Reenders
Lic: RB-21784
Andrew Reenders
Yasuyuki Kojima
Lic: RS-72619
Yasuyuki Kojima
Eric Zheng
Lic: RS-85703
Eric Zheng
Newly renovated office building located at 3112 Mokihana St in the Kapahulu submarket of Honolulu, Hawaii. This property is well-suited for an owner-user, featuring modern amenities and excellent accessibility on a major thoroughfare with high visibility. Surrounded by a vibrant community with a diverse mix of residential and commercial establishments, it benefits from a strong demographic trade area. The property is free and clear of any encumbrances making it an ideal opportunity for a new office tenant looking to establish themselves in this thriving market.
A newly renovated office building located at 3112 Mokihana St in the Kapahulu submarket of Honolulu, Hawaii.

Lease Type

Direct

Lease Rate

Contact Broker For Pricing
lower floor plan
upper floor plan
Get in touch
Andrew Reenders
Lic: RB-21784
Andrew Reenders
Yasuyuki Kojima
Lic: RS-72619
Yasuyuki Kojima
Eric Zheng
Lic: RS-85703
Eric Zheng