Eastgate Building 15500 Southeast 30th Place

Bellevue, WA 98007

For Lease

3,244 - 58,471 sqft

Lease Price

$30/sqft/yr
View Floor Plans
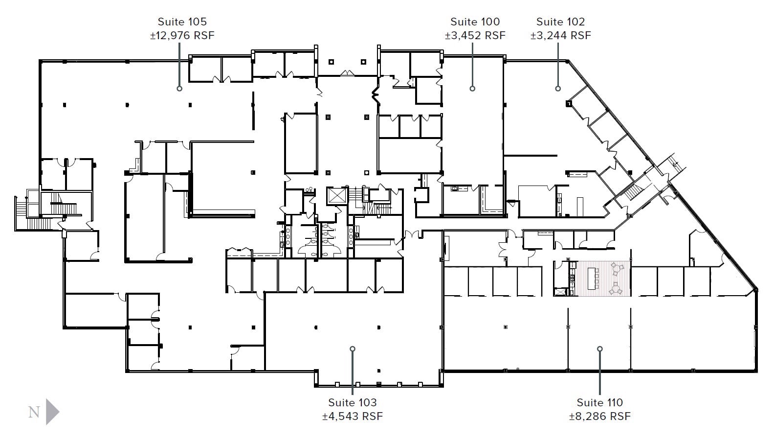
Full First Floor | 3,244-32,501 SF
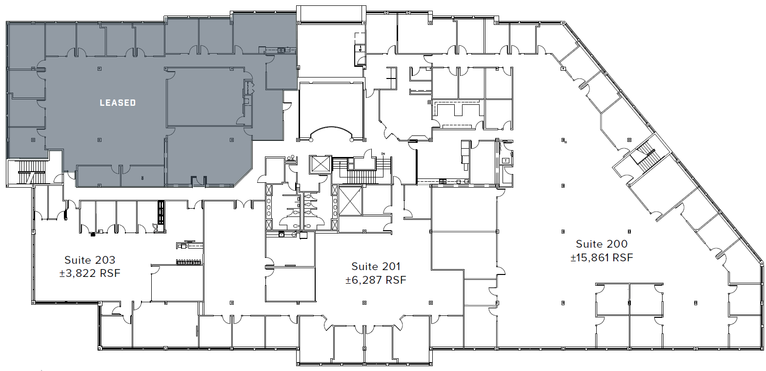
Second Floor | 3,822-25,970 SF
Interactive Video
Brochure
Amenities Map.pdf
Eastgate Building Flyer.pdf
Video
Map
Office For Lease - Available July 2025
3,244-58,471 SF Available | Prime Eastgate location
Newly Remodeled Lobby
Get in touch
Scott Davis
SD
Robert Baker
Robert Baker
Professionally maintained two-story suburban office building with large floor plates, comfortable light filled atrium-style lobby and covered parking in a natural setting.
Conveniently located in Bellevue's Eastgate neighborhood with direct freeway access and easy walking distance to desirable amenities including Starbucks, quick-serve restaurants and hotels.

Minimum Space Available

3,244 sqft

Total Space Available

58,471 sqft
Suite 100
3,452 sqft
Office
Lease
$30/sqft/yr

Status

Available

Lease Type

Direct

Prominent lobby frontage. Built out with six private offices, conference room, break area and open office. Can be combined with Suite 102 for 6,696 SF or full floor up to 32,501 SF.
Floorplan

View Floor Plans

Suite 102
3,244 sqft
Office
Lease
$30/sqft/yr

Status

Available

Lease Type

Direct

+ 3
Available July 1, 2026 or potentially sooner. Can be combined with Suite 100 for 6,696 SF or full floor up to 32,501 SF.
Floorplan

View Floor Plans

Suite 103
4,543 sqft
Office
Lease
$30/sqft/yr

Status

Available

Lease Type

Direct

+ 2
Mostly open floor plan with double glass-door entry, three private offices, conference room and break room/kitchen area. Can be combined with Suite 110 for 12,829 SF, with Suite 105 for 17,519 SF or both for up to 25,805 SF of contiguous space.
Floorplan

View Floor Plans

Suite 105
12,976 sqft
Office
Lease
$30/sqft/yr

Status

Available

Lease Type

Direct

+ 3
Beautiful modern space with mix of large open work space, private offices, conference rooms and large break area. Market-ready condition with existing furniture available. Can be combined with Suite 103 for 17,519 SF Suite 110 for up to 25,805 SF or full floor up to 32,501 SF available.
Floorplan

View Floor Plans

Suite 110
8,286 sqft
Office
Lease
$29.50/sqft

Status

Available

Lease Type

Direct

Modern buildout with a mix of interior private offices, conference rooms, central break area and large open work areas. Can be combined with Suite 103 for 12,829 SF, Suite 105 for 17,519 SF or full floor up to 32,501 SF available.
Suite 201
6,287 sqft
Office
Lease
$30/sqft/yr

Status

Available

Lease Type

Direct

Former law office with eight large executive offices on the glass line, open work spaces, conference rooms, print, storage and break area.
Suite 203
3,822 sqft
Office
Lease
$30/sqft/yr

Status

Available

Lease Type

Direct

Versatile buildout with reception, two focus rooms, two phone rooms, break room, huddle room, project room and large conference room. Can be combined with Suite 201 for 10,109 SF and Suite 200 and 201 for up to 25,970 SF on the second floor or combined with the first floor for up to 58,471 SF.
Floorplan

View Floor Plans

Lease Type

Direct

Lease Rate

$30/sqft/yr

Lease Rate Type

Triple Net (NNN)
Restaurant
Starbucks
Coffee
0.2 miles
3 min. /walk
McDonalds
Restaurant
0.2 miles
5 min. /walk
Crab Season
Restaurant
0.3 miles
6 min. /walk
Lil' Jon Restaurant
Restaurant
0.5 miles
10 min. /walk
Dairy Queen
Restaurant'
0.5 miles
10 min. /walk
Outback Steakhouse
Restaurant
1 miles
5 min. /drive
Hotel
Embassy Suites by Hilton Seattle Bellevue
Hotel
0.2 miles
4 min. /walk
Days Inn
Motel
0.3 miles
5 min. /walk
Transit/Subway
Eastgate Park & Ride
1.1 miles
5 min. /drive
Highway
I-90
0.4 miles
2 min. /drive
I-405
2.1 miles
5 min. /drive
Full First Floor | 3,244-32,501 SF
Second Floor | 3,822-25,970 SF
Get in touch
Scott Davis
SD
Robert Baker
Robert Baker