Northwest Corporate Center 1790 Commerce Park Drive

El Paso, TX 79912

For Lease

3,670 sqft

Lease Price

$19/sqft/yr
View Floor Plans
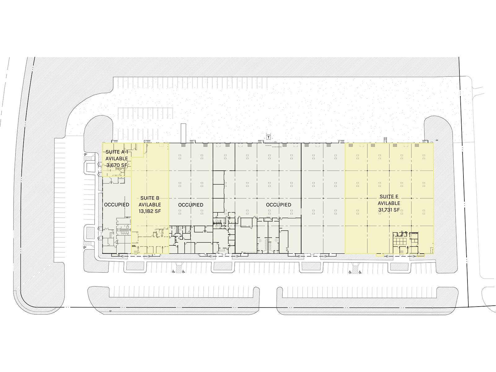
1790 Commerce Park - Office Floor Plan (Available Area Marked)
1790 Commerce Park - Site Plan (Available Area Marked)
Brochure
Map
Office For Lease - Available Immediately
Class A Office / Support Center Space
Available: Immediately
Asking Price: $19.00 PSF NNN
Get in touch
Christian Perez Giese
Christian Perez Giese
This property is located between Transmountain Drive and Paseo del Norte, just off I-10. The building has immediate access to West Towne Marketplace, the Trans Mountain Campus of the Hospital of Providence, the Outlet Shoppes, and Cimarron.

Minimum Space Available

3,670 sqft

Total Space Available

3,670 sqft
Suite A-1
3,670 sqft
Office

Status

Available

Lease Type

Direct

Fully Built-Out Executive Offices: - Four (4) private offices - One (1) conference room - Two (2) open office areas - One (1) reception area - One (1) IT room - Two (2) restrooms - Kitchen / break room

Lease Type

Direct

Lease Rate

$19/sqft/yr

Lease Rate Type

Triple Net (NNN)
1790 Commerce Park - Office Floor Plan (Available Area Marked)
1790 Commerce Park - Site Plan (Available Area Marked)
Get in touch
Christian Perez Giese
Christian Perez Giese