536 Southgate Avenue

Iowa City, IA 52240

For Sale/Lease

2,048 sqft

Sale Price

$295,000

Lease Price

$11.72
View Floor Plans
Brochure
Map
Office For Sale/Lease - Available Immediately
Built in 1981
Completely remodeled in 2014 with quality interior finishes
Real Estate Taxes: $4,460/year
Tenant self performs common area maintenance
Ample onsite parking
Building signage
Get in touch
Bill Wright
Bill Wright
Chris Pendroy CCIM, SIOR
Chris Pendroy CCIM, SIOR
Grant Wright, CCIM
Grant Wright, CCIM
Dakota Little
Dakota Little
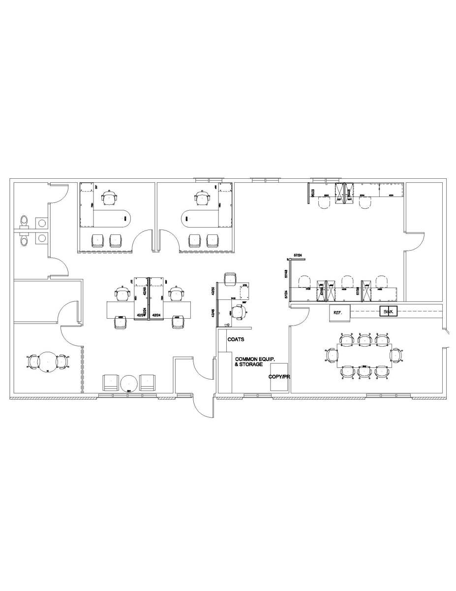
Standalone office building available for sale or lease located in south Iowa City, just minutes from Highway 6. The property offers 2,048 square feet of office space with three private offices, a conference room, open work area, and two restrooms. Built in 1981and remodeled in 2014, it features quality finishes and on-site parking. This convenient location is ideal for professional or medical offices seeking easy access and strong visibility.

Minimum Space Available

2,048 sqft

Total Space Available

2,048 sqft

Lease Type

Direct

Sale Price

$295,000

Lease Rate

$11.72
Globe IC floor plan
Get in touch
Bill Wright
Bill Wright
Chris Pendroy CCIM, SIOR
Chris Pendroy CCIM, SIOR
Grant Wright, CCIM
Grant Wright, CCIM
Dakota Little
Dakota Little