Bank of Hawaii Waikiki 2155 Kalakaua Avenue

Honolulu, HI 96815

Lease Price

Contact Broker For Pricing
View Floor Plans
Brochure
OF81_2155 Kalakaua Ave.pdf
OF81_2155KalakauaBlvd-Sublease.pdf
Map
Office For Lease - Available Immediately
Get in touch
Serena C. Longo
Lic: RS-74888
Serena C. Longo
Austin O'leary
Lic: RS-83544
Austin O'leary
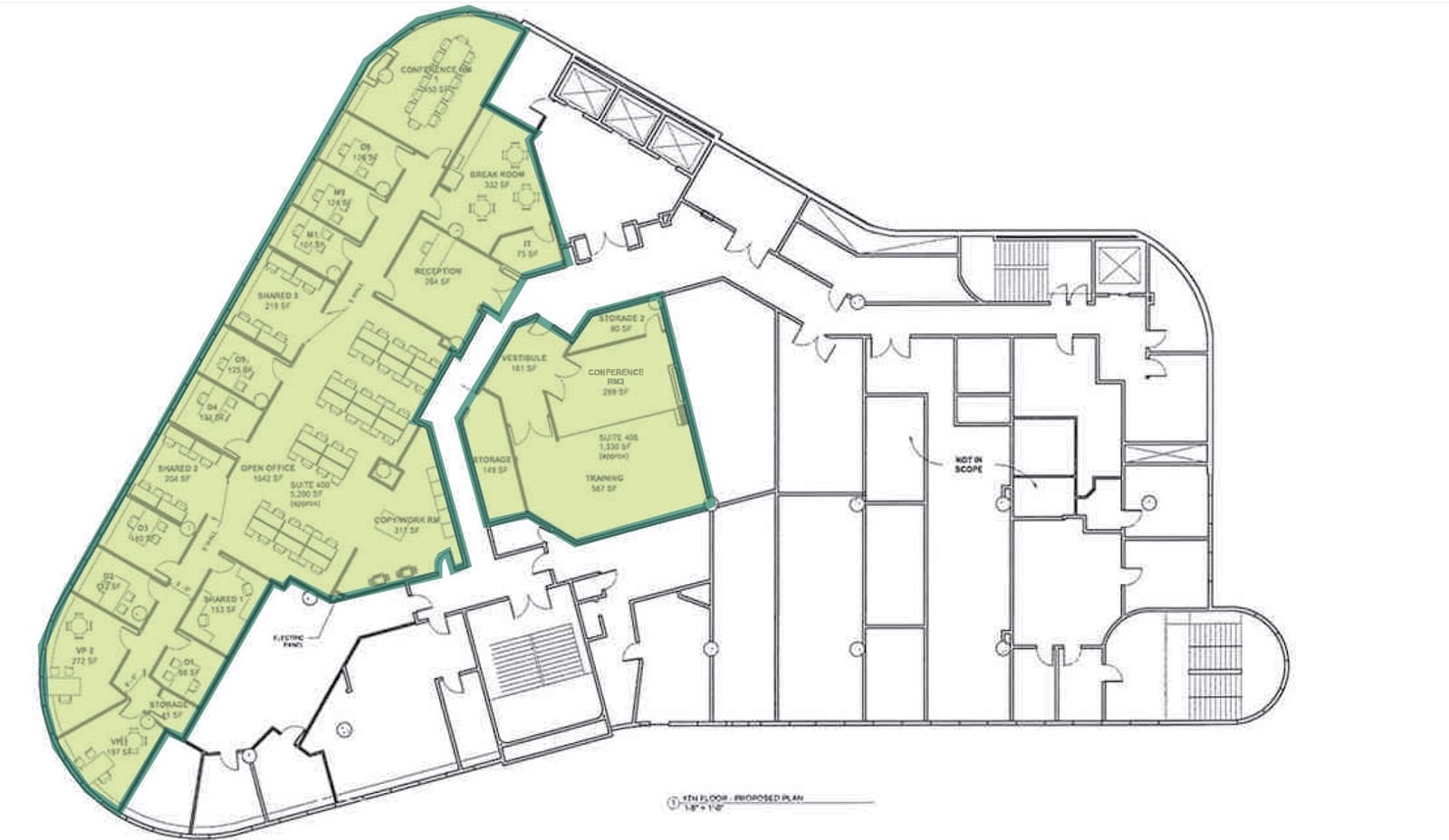
4th Floor - Suite 400
7,417 sqft
Office

Status

Available

Lease Type

SubLease

+ 6
+ Base Rent: Negotiable + 2024 OPEX: $2.37/RSF/month + Sublease Expiration: 12/31/2027 + Parking: 11 Unreserved Stalls
Floorplan

View Floor Plans

4th Floor - Suite 409
1,242 sqft
Office

Status

Available

Lease Type

SubLease

CBRE is pleased to present 1,242 square feet of sublease office space on the 4th floor at Bank of Hawaii Waikiki Center. The office features two private offices and a lounge/conference room.
Floorplan

View Floor Plans

Lease Type

Direct

Lease Rate

Contact Broker For Pricing
2155 Kalakaua Ave Suite 400 Marked Floor Plan
Get in touch
Serena C. Longo
Lic: RS-74888
Serena C. Longo
Austin O'leary
Lic: RS-83544
Austin O'leary