Cathedral District Business Center 823 South Detroit Avenue

Tulsa, OK 74120

For Sale

66,402 sqft

Sale Price

$5,500,000
View Floor Plans
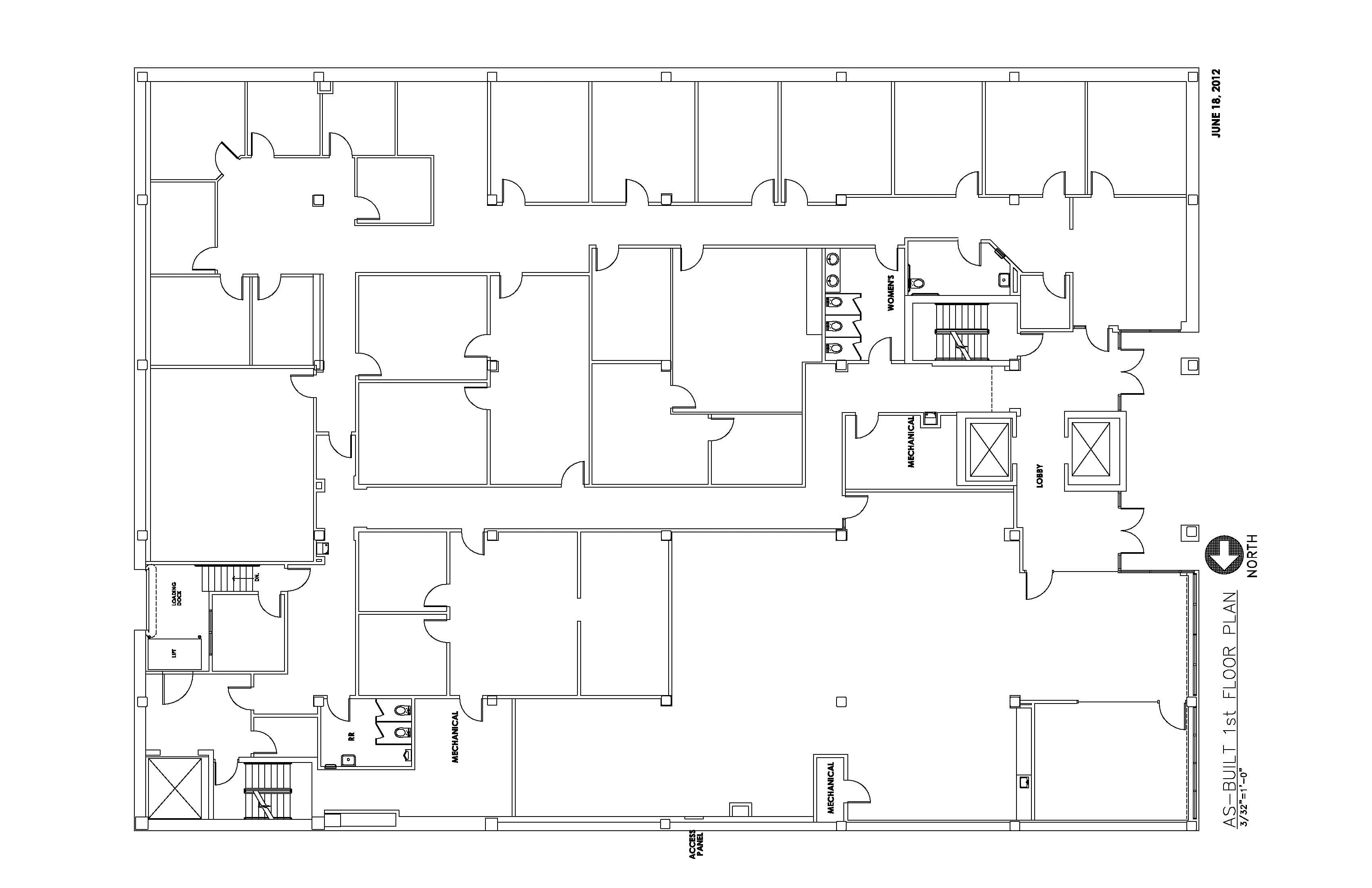
First Floor Plan
Second Floor Plan
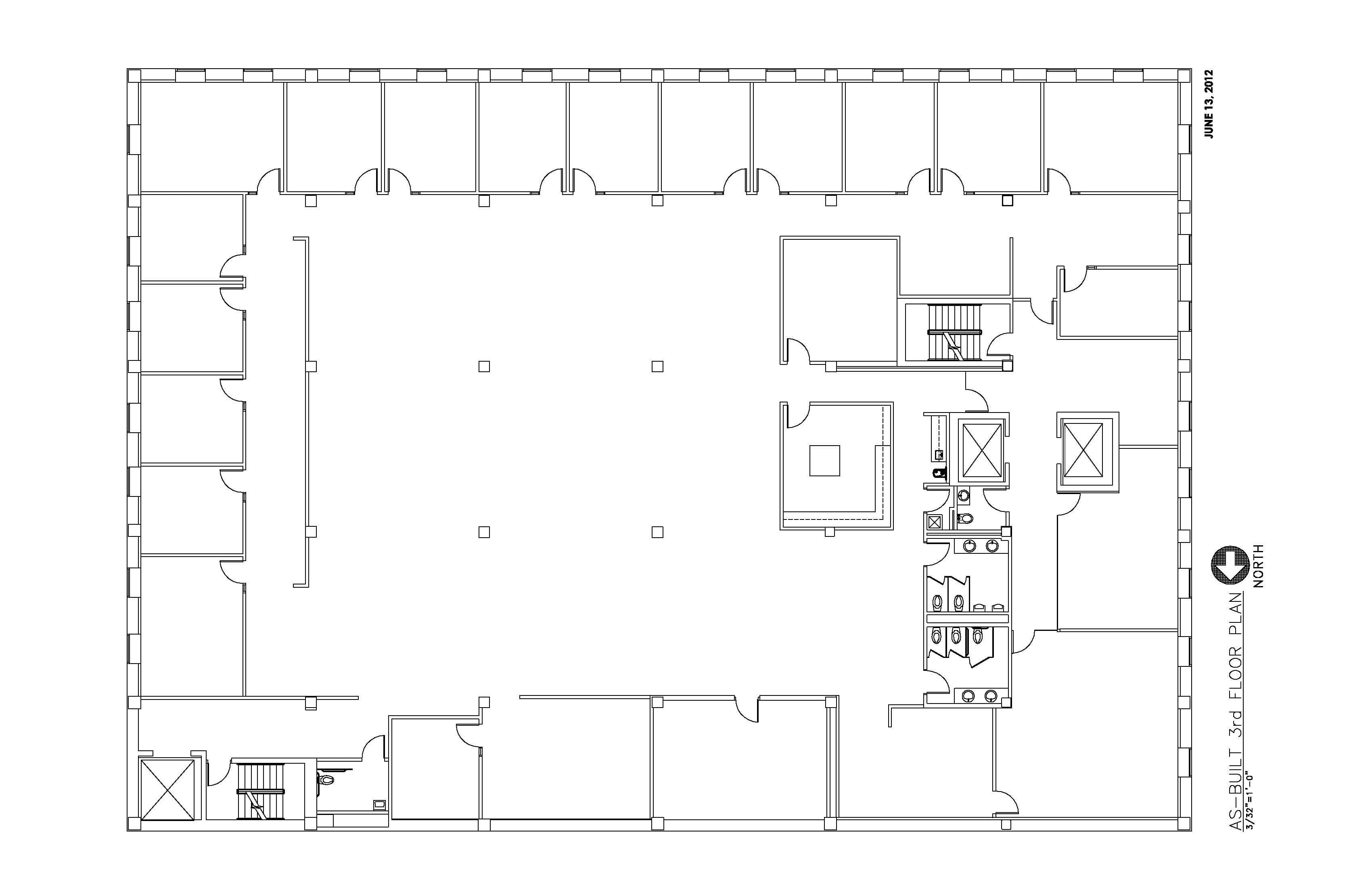
Third Floor Plan
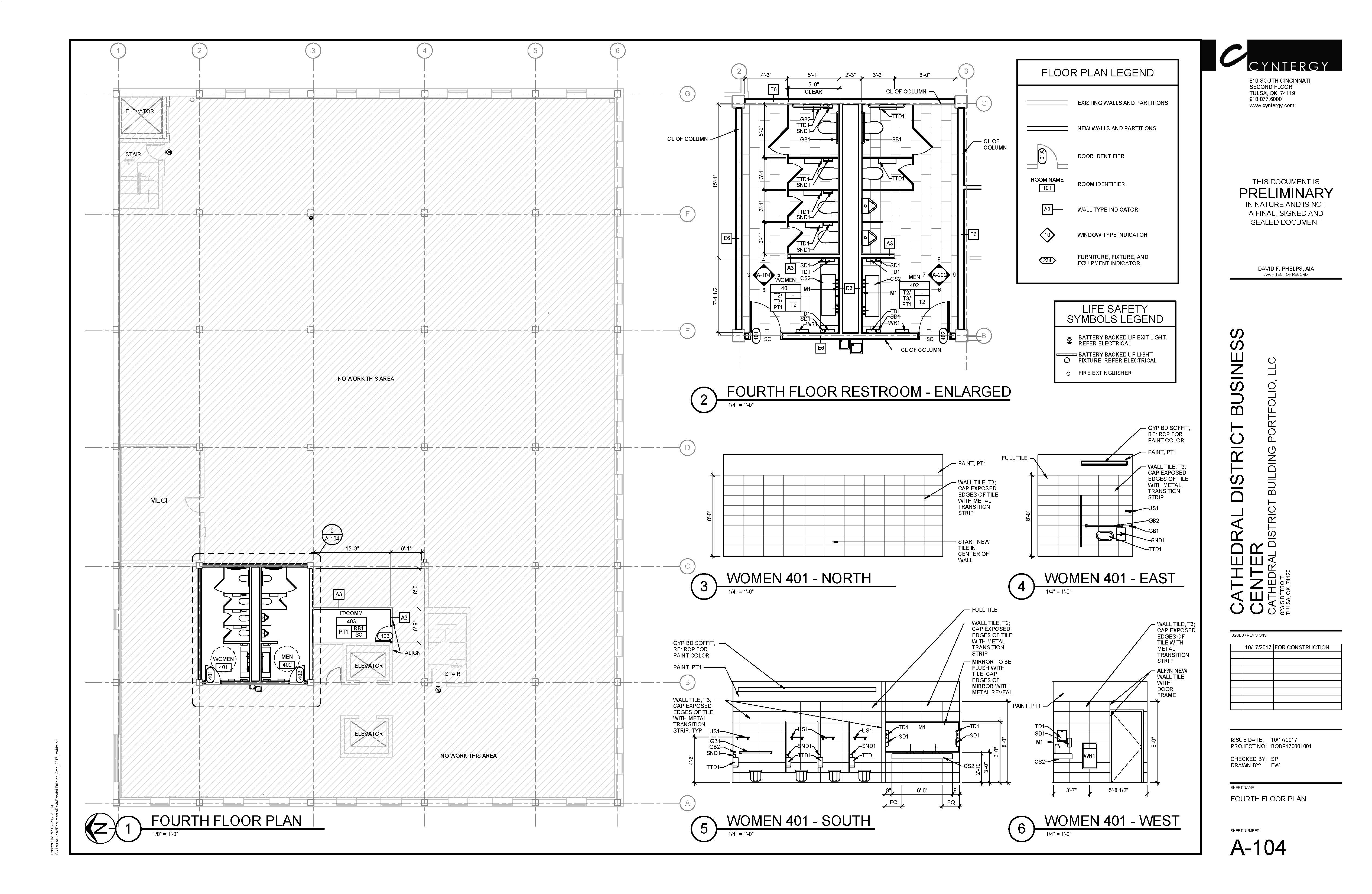
Fourth Floor Plan
Basement Floor Plan
Map
Office For Sale - Available April 2020
Office Building Sale - Owner/User Opportunity
±66,402 SF
±1.033 Acres (1/2 city block)
Built in 1959 and renovated in 2018
±124 total parking spaces with ±98 surface and ±26 covered
Zoned CBD (Central Business District)
Get in touch
Dylan Seibert
Dylan Seibert
The Cathedral District Business Center (“CDBC”) is a four-story office building located at the Northeast corner of 8th Street and Detroit Avenue in Downtown Tulsa.

Total Space Available

66,402 sqft

Sale Price

$5,500,000
First Floor Plan
Second Floor Plan
Third Floor Plan
Fourth Floor Plan
Basement Floor Plan
Get in touch
Dylan Seibert
Dylan Seibert