The Hartsfield Building 5757 Decatur Boulevard
Indianapolis, IN 46241
For Lease
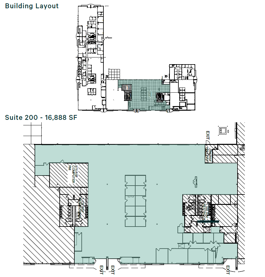
16,888 sqft
Lease Price
$18/sqft/yr
View Floor Plans
Brochure
Map
Office For Lease - Available Immediately
16,888 SF Available in the Heart of Ameriplex Park
Clear Height (16’8”)
Lease Rate: $18.00/SF Full Service net of janitorial
Get in touch
Jeff Merritt
+ Large, Efficient Floor Plan
+ Clear Height (16’8”)
+ Ample Surface Parking
+ Abundant Area Amenities
+ On-site Generator
+ Lease Rate: $18.00/SF Full Service net of janitorial
+ Clear Height (16’8”)
+ Ample Surface Parking
+ Abundant Area Amenities
+ On-site Generator
+ Lease Rate: $18.00/SF Full Service net of janitorial
At +/-88,000 SF, the Hartsfield Building conveniently sits within the budding Ameriplex business park. With immediate access to I-465 and I-70, the Hartsfield Building is only an eight minute drive from the Indianapolis International Airport.
Total Space Available
16,888 sqft
Suite 200
16,888 sqft
Office
$18/sqft/yr
Status
Available
Lease Type
Direct
Lease Type
Direct
Lease Rate
$18/sqft/yr
Get in touch
Jeff Merritt