Synovus Bank Office Space 1333 Enterprise Way Northwest

Huntsville, AL 35806

Lease Price

$22/sqft/yr
View Floor Plans
2nd Floor
3rd Floor
Brochure
Map
Office For Lease - Available April 2022
Come Join Synovus!
Get in touch
Shannon Tyndall
Shannon Tyndall
Synovus bank branch with office availabilities on the second and third floors.
Excellent location north of Cummings Research Park off Highway 72 near Research Park Blvd. Surrounded by major retailers including Target, Ross Dress for Less, PetSmart, Party City, Burlington, Conn's HomePlus, 24e Health Club, Sam's Club, Walmart, JoAnn, Best Buy, Topgolf, and Dave & Buster's.
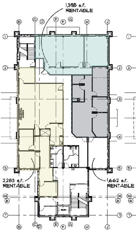
Second Floor - A
1,395 sqft
Office
Lease
$22/sqft

Status

Available

Lease Type

Direct

Floorplan

View Floor Plans

Second Floor - B
1,662 sqft
Office
Lease
$22/sqft

Status

Available

Lease Type

Direct

Floorplan

View Floor Plans

Second Floor - C
2,283 sqft
Office
Lease
$22/sqft

Status

Available

Lease Type

Direct

Floorplan

View Floor Plans

Third Floor
5,358 sqft
Office
Lease
$22/sqft/yr

Status

Available

Lease Type

Direct

Floorplan

View Floor Plans

Lease Type

Direct

Lease Rate

$22/sqft/yr

Lease Rate Type

Full Service Gross (FSG)
2nd Floor
3rd Floor
Get in touch
Shannon Tyndall
Shannon Tyndall