450 Bryant Street

San Francisco, CA 94107

For Lease

21,250 sqft

Lease Price

Contact Broker For Pricing
View Floor Plans
1st Floor
Mezz Plan
Top Floor
Interactive Video
Brochure
Property Website
Map
Office For Lease - Available Immediately
Full Building Newly Renovated Space Available for Direct Lease
Get in touch
Bob Kraynak
Lic: 01196225
BK
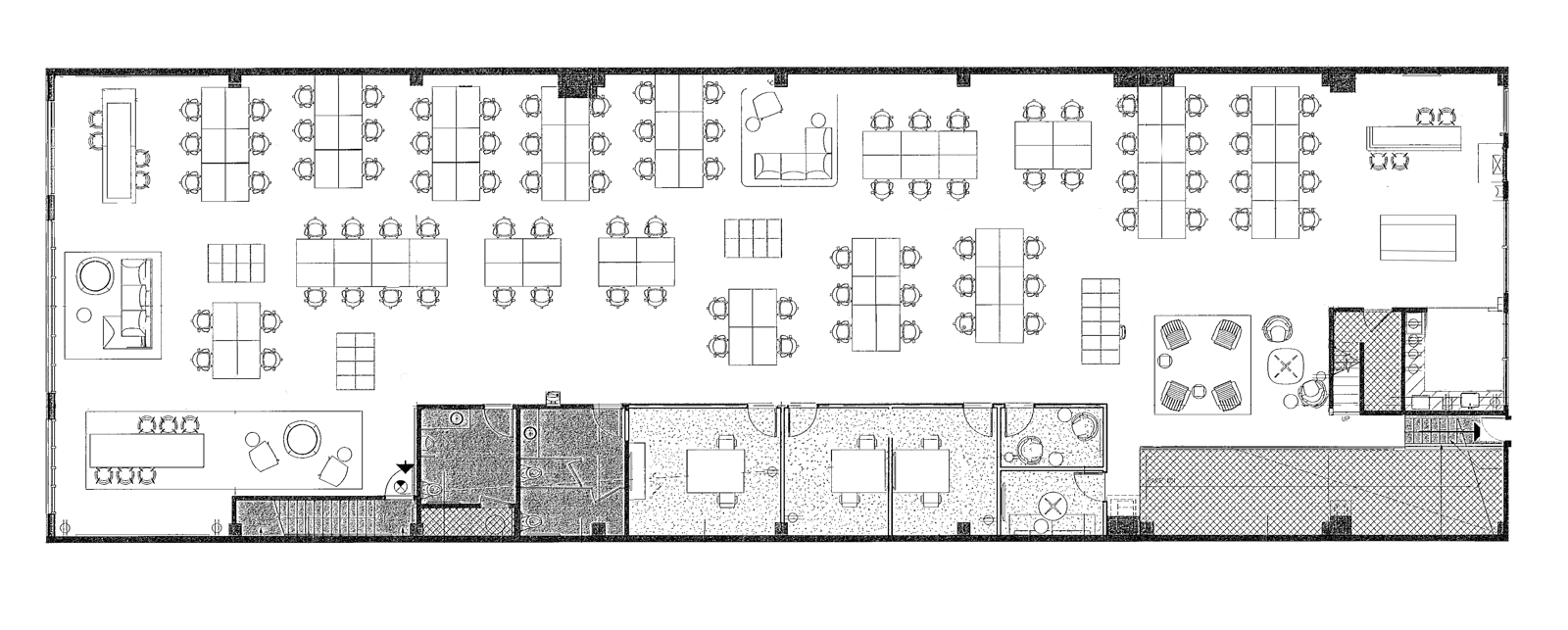
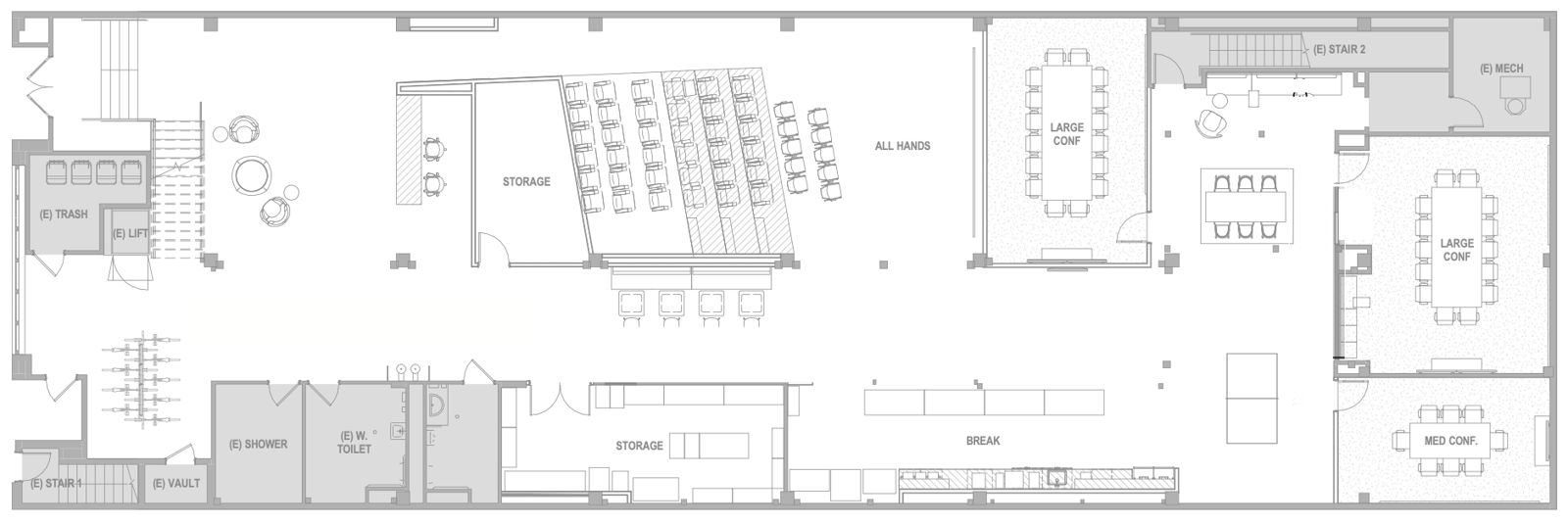
21,250 SF spread out over three floors, highly creative buildout with polished concrete and hardwood floors. Custom presentation area with stadium seating for 46+. There are showers and lockers. The building has multiple entrances from Bryant & Stillman Streeet. Exterior signage availble.
Steps from South Park, a short walk to Oracle Park, CalTrain, and BART.

Minimum Space Available

21,250 sqft

Total Space Available

21,250 sqft

Lease Type

Direct

Lease Rate

Contact Broker For Pricing
1st Floor
 Mezz Plan
Top Floor
Get in touch
Bob Kraynak
Lic: 01196225
BK