Madison Centre 920 5th Avenue

Seattle, WA 98104

For Lease

14,000 - 14,106 sqft

Lease Price

Contact Broker For Pricing
View Floor Plans
Brochure
Video
Map
Office For Lease - Available December 2022
34th Floor Sublease at Madison Center in Seattle
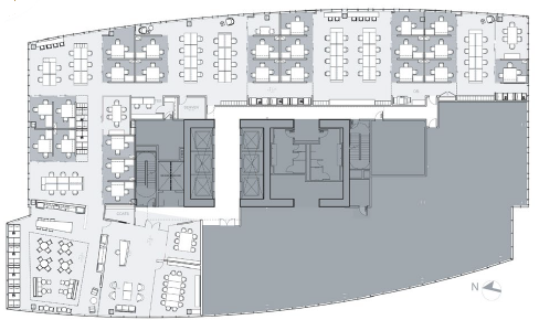
Suite 3400: 14,106 RSF
Available July 1, 2023
Plug-and-play sublease includes: Private offices, conference rooms, open workspaces and kitchen
Master lease expires September 10, 2027
Phenomenal panoramic views of Elliott Bay, Mount Rainier and Olympic Mountains
Immediate access to I-5
Walking distance to transit stations and numerous downtown amenities
Up to 10 stalls of underground parking at current monthly rate
Building amenities include: Rooftop gathering space, fitness/wellness center managed by Washington Athletic Club, shared conference and board rooms
Get in touch
Matt Walters
Matt Walters
Michael Dash
Michael Dash

Minimum Space Available

14,000 sqft

Total Space Available

14,106 sqft

Lease Type

SubLease

Lease Rate

Contact Broker For Pricing
Floor Plan
Get in touch
Matt Walters
Matt Walters
Michael Dash
Michael Dash