4219 South Othello Street
Seattle, WA 98118
Lease Price
Contact Broker For Pricing
View Floor Plans
Brochure
Map
Retail For Lease - Available Immediately
Get in touch
Lourdes Valdesuso
Retail spaces serve 351 residential apartments with onsite retail parking
Ideal location for wireless, hair or nail salon, medical insurance services, fitness or food related uses not requiring a Type 1 Hood
Ideal location for wireless, hair or nail salon, medical insurance services, fitness or food related uses not requiring a Type 1 Hood
Directly across from Sound Transit's Othello Station, bring over 1M travelers per year to the immediate trade area
Over 31,400 cars/day
Over 31,400 cars/day
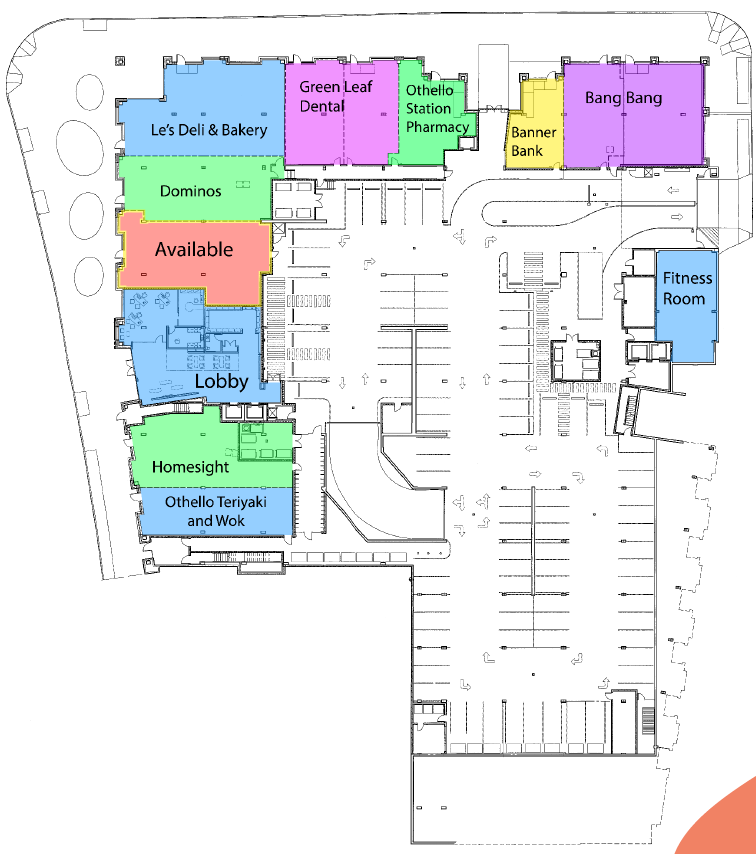
Suite 105-A
2,200 sqft
Status
Available
Lease Type
Direct
Lease Type
Direct
Lease Rate
Contact Broker For Pricing
Get in touch
Lourdes Valdesuso