119 Simon Drive

Syracuse, NY 13224

For Lease

1,767 - 5,117 sqft

Lease Price

$21
View Floor Plans
Brochure
Map
Retail For Lease
Retail Space for Lease
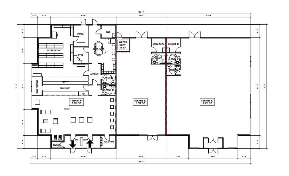
+ Up to 5,117 SF retail space available for lease (1,767 SF and 3,350 SF continguous) Co-tenant: Melting Pot Dispensary
Neighboring Tenants of Interest:Lowe’s, Price Chopper, Golden Corral, Broadview Federal Credit Union, Melting Pot Dispensary
Approximately 0.2 miles from eastbound ramps for I-690
Annual Average Daily Traffic: 68,310 on I-690 and 17,035 on Midler Ave.
Less than .25 miles to Erie Blvd. E. retail corridor & high volume Price Chopper location
Space will be provided in shell condition
Ample convenient parking
Get in touch
Cory LaDuke, SIOR
Lic: Associate Real Estate Broker
Cory LaDuke, SIOR
Glenn Weisiger
Lic: Associate Real Estate Broker
Glenn Weisiger
New York - Syracuse
Retail space available for lease in the same complex as Lowe‘s, Golden Corral Buffet & Grill and Broadview Federal Credit Union. Excellent access to I-690 and the Erie Boulevard retail corridor.

Available Spaces:
- Tenant 2: 1,767 SF
- Tenant 3: 3,350 SF

Total Building Size: 8,739 SF

Lot Size: 1.3 acres
Adjacent to Lowe‘s, Golden Corral Buffet & Grill, and Broadview Federal Credit Union near I-690.

Minimum Space Available

1,767 sqft

Total Space Available

5,117 sqft
Tenant 2
1,767 sqft
Retail
Lease
$21/sqft

Status

Available

Lease Type

Direct

Floorplan

View Floor Plans

Tenant 3
3,350 sqft
Retail
Lease
$18.50/sqft

Status

Available

Lease Type

Direct

Floorplan

View Floor Plans

Lease Type

Direct

Lease Rate

$21

Lease Rate Type

Triple Net (NNN)
119 Simon Drive - Floorplan
Get in touch
Cory LaDuke, SIOR
Lic: Associate Real Estate Broker
Cory LaDuke, SIOR
Glenn Weisiger
Lic: Associate Real Estate Broker
Glenn Weisiger
New York - Syracuse