Service Life Building 1904 Farnam Street

Omaha, NE 68102

For Lease

1,198 - 5,994 sqft

Lease Price

$18 - $20/sqft/yr
View Floor Plans
Brochure
Map
Retail For Lease - Available Immediately
Historic Service Life Building For Lease
Situated on the northwest corner of 19th and Farnam Streets
Just north of the Flatiron District, near the courthouse and amenities such as retail, services, entertainment and office
Near new development, dense residential, and public transportation, including direct access to proposed Modern Streetcar
The property boasts a high 92 walk score, 50 transit score and 70 bike score
Zoned Central Business District with Area of Civic Importance overlay (CBDACI- 1(PL)-*LL).
In addition to the property’s on-street, metered parking, there are two parking garages located within one block of the building
Get in touch
Nicholas Weideman
Nicholas Weideman
Designed by the architectural firm of John Latenser and Sons and built in 1927 by Kiewit Brothers construction company, the historic Art Deco-style Service Life Building is one of Omaha’s downtown historic landmarks, designated in March 27, 1984. Originally the Union State Bank building, the building’s use has primarily been office over the last nearly 100 years. In June 2024 (with estimated completion of September 2025), the property undertook a $25MM development of 54 residential units and 5,000 SF commercial consisting of two office suites and new breakfast/lunch restaurant concept.
The site is situated on the northwest corner of 19th and Farnam Streets, in a convenient downtown location of Omaha’s Central Business District.

Minimum Space Available

1,198 sqft

Total Space Available

5,994 sqft
Former Restaurant
3,348 sqft
Retail
Lease
$20/sqft/yr

Status

Available

Lease Type

Direct

+ 3
Floorplan

View Floor Plans

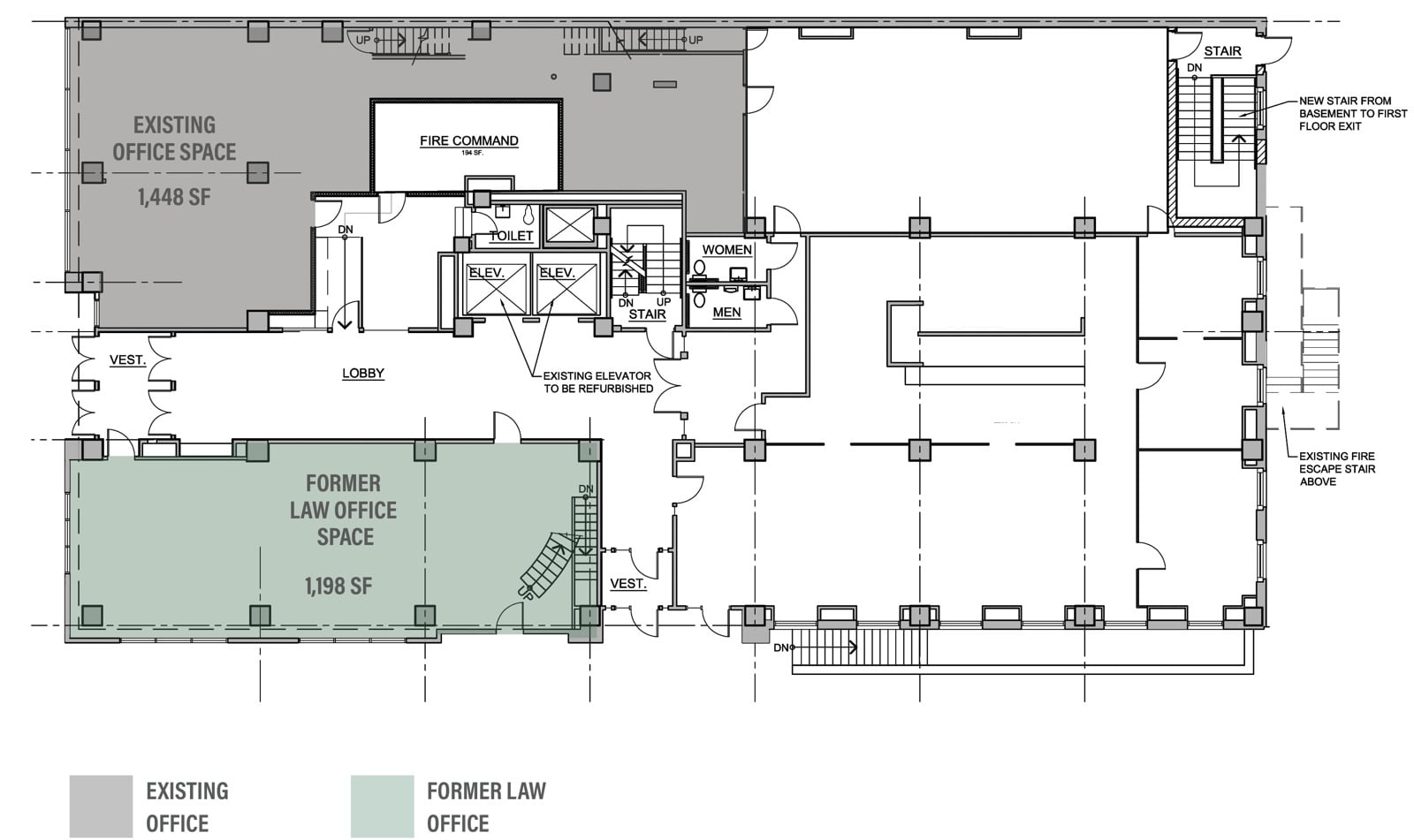
Existing Office
1,448 sqft
Office
Lease
$18/sqft/yr

Status

Available

Lease Type

Direct

Floorplan

View Floor Plans

Former Law Office
1,198 sqft
Office
Lease
$18/sqft/yr

Status

Available

Lease Type

Direct

Floorplan

View Floor Plans

Lease Type

Direct

Lease Rate

$18 - $20/sqft/yr

Lease Rate Type

Triple Net (NNN)
Service Life Building 1904 Farnam Street - Image 1
Get in touch
Nicholas Weideman
Nicholas Weideman