U.S. 30 Center Mall - High Visibility Retail Space 3100 23rd Street
Columbus, NE 68601
For Lease
818 - 12,124 sqft
Lease Price
Contact Broker For Pricing
View Floor Plans
U.S. 30 Center Mall - High Visibility Retail Space 3100 23rd Street - Image 1
U.S. 30 Center Mall - High Visibility Retail Space 3100 23rd Street - Image 2
Brochure
Map
Retail For Lease - Available Immediately
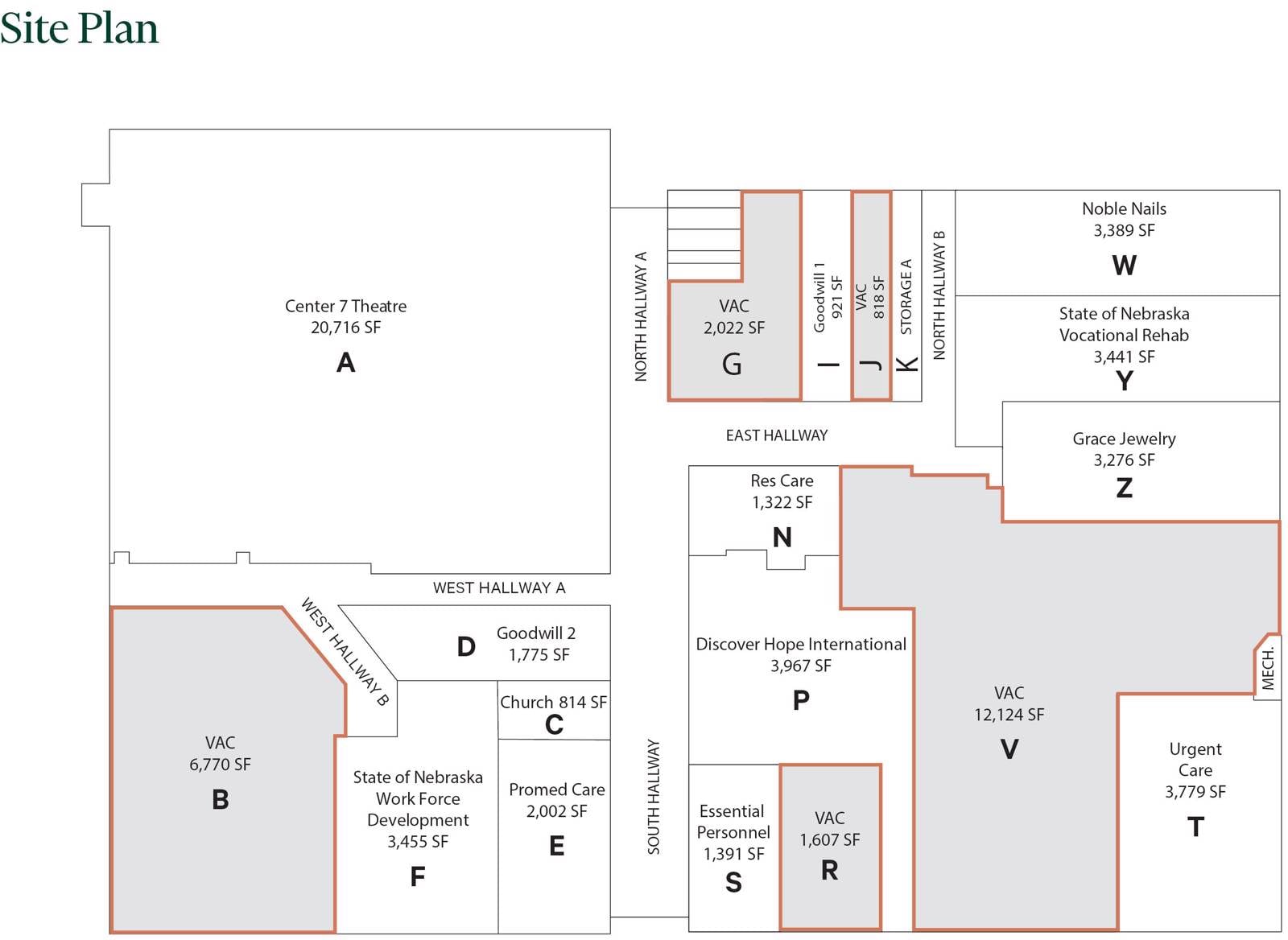
Retail Space Available: 818-12,124 SF
Located along Columbus’s main east west thoroughfare 23rd Street (U.S. Hwy 30)
Highly accessible with excellent visibility
Pole and building signage
Join other tenants: Urgent Care, Center 7 Theatre, Goodwill, State of Nebraska, Discover Hope, Grace Jewelry, Noble Nails and more
Well-established neighborhood mall
Ideal for retail sales and service
Get in touch
Brad Schaefer
Bennett Janecek
Property Information
Lease Rate See Agent
Space Available 818-12,124 SF
— Suite B 6,770 SF
— Suite G 2,022 SF
— Suite J 818 SF
— Suite R 1,607 SF
— Suite V 12,124 SF
Lease Rate See Agent
Space Available 818-12,124 SF
— Suite B 6,770 SF
— Suite G 2,022 SF
— Suite J 818 SF
— Suite R 1,607 SF
— Suite V 12,124 SF
Space Details
+ Suite B – 6,770 SF
− Corner space facing 23rd Street
− Former restaurant
+ Suite G – 2,022 SF
− Interior space
− North side visibility
+ Suite J – 818 SF
− Interior space
− Former hair salon
− North side visibility
+ Suite R – 1,607 SF
− 23rd Street visibility
− Former home health care business
+ Suite V – 12,124 SF
− 23rd Street visibility
− Former physical therapy
+ Suite B – 6,770 SF
− Corner space facing 23rd Street
− Former restaurant
+ Suite G – 2,022 SF
− Interior space
− North side visibility
+ Suite J – 818 SF
− Interior space
− Former hair salon
− North side visibility
+ Suite R – 1,607 SF
− 23rd Street visibility
− Former home health care business
+ Suite V – 12,124 SF
− 23rd Street visibility
− Former physical therapy
Minimum Space Available
818 sqft
Total Space Available
12,124 sqft
Lease Type
Direct
Lease Rate
Contact Broker For Pricing
Get in touch
Brad Schaefer
Bennett Janecek