Pflugerville Downtown East 765 Pecan Street East

Pflugerville, TX 78660

For Lease

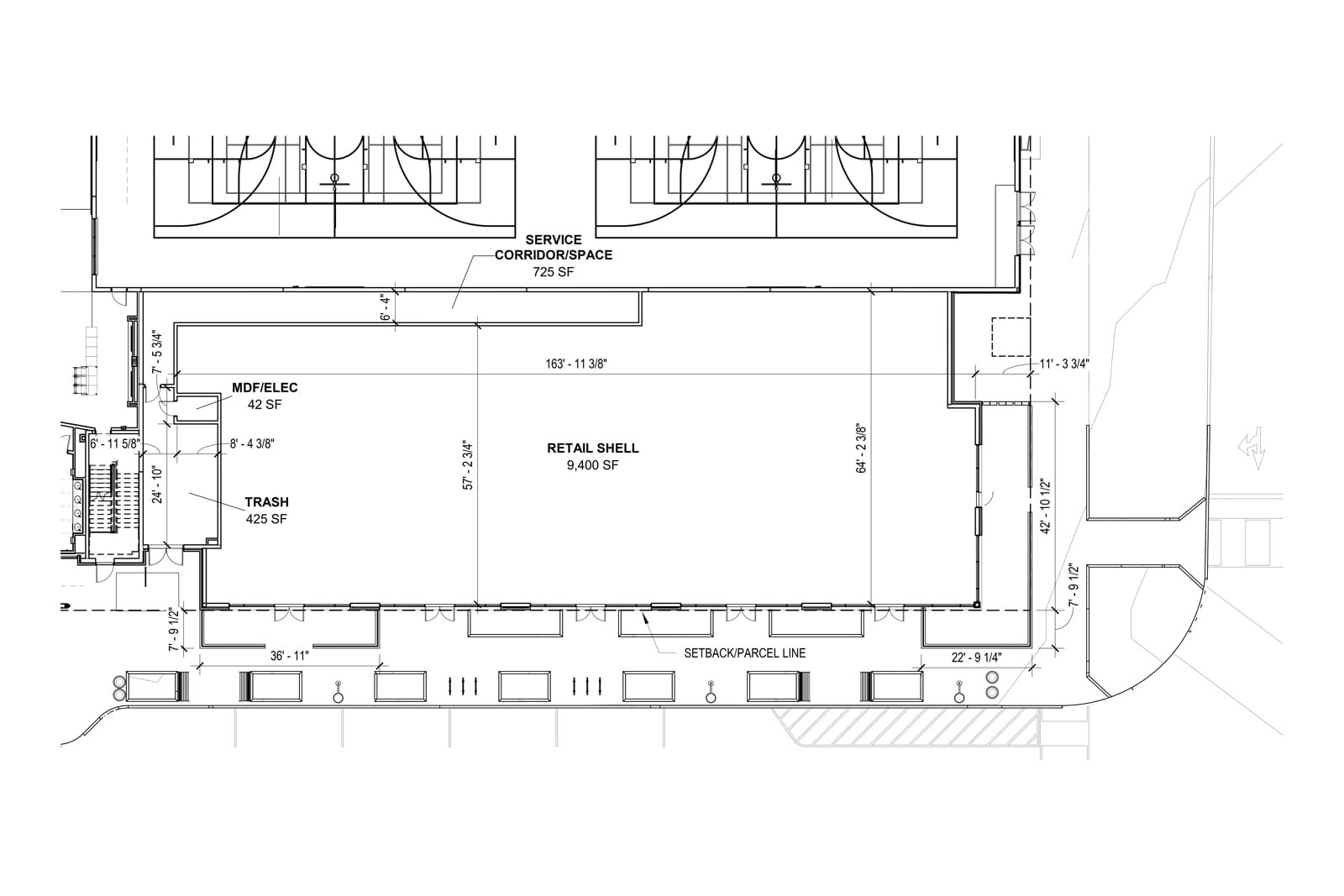
9,400 sqft

Lease Price

Contact Broker For Pricing
View Floor Plans
Retail Rentable Area Plans_BW
Retail Rentable Area Plans_Color
Brochure
Map
Retail For Lease
9,400 SF Divisible Retail Shell
Get in touch
Will Majors
Will Majors
Carson Hawley
Carson Hawley
The City of Pflugerville and master developer Griffin Swinerton are underway with a public-private partnership (P3) to develop the Pfluger Tract, 29-acres located at the northwest corner of FM 685 and E Pecan Street, to include a new City Hall, Recreation Center, Civic Plaza, and mixed-use development. The 19 project goals established for the Downtown East project come together to support an economically and socially vibrant extension of Pflugerville’s downtown that includes the facilities needed to continue providing the high quality services the community expects and deserves for
generations to come.

Total Space Available

9,400 sqft

Lease Type

Direct

Lease Rate

Contact Broker For Pricing

Lease Rate Type

Triple Net (NNN)
Retail Rentable Area Plans_BW
Retail Rentable Area Plans_Color
Get in touch
Will Majors
Will Majors
Carson Hawley
Carson Hawley