Oxbow Crossing 603 U.S. 6

Ashland, NE 68003

For Lease

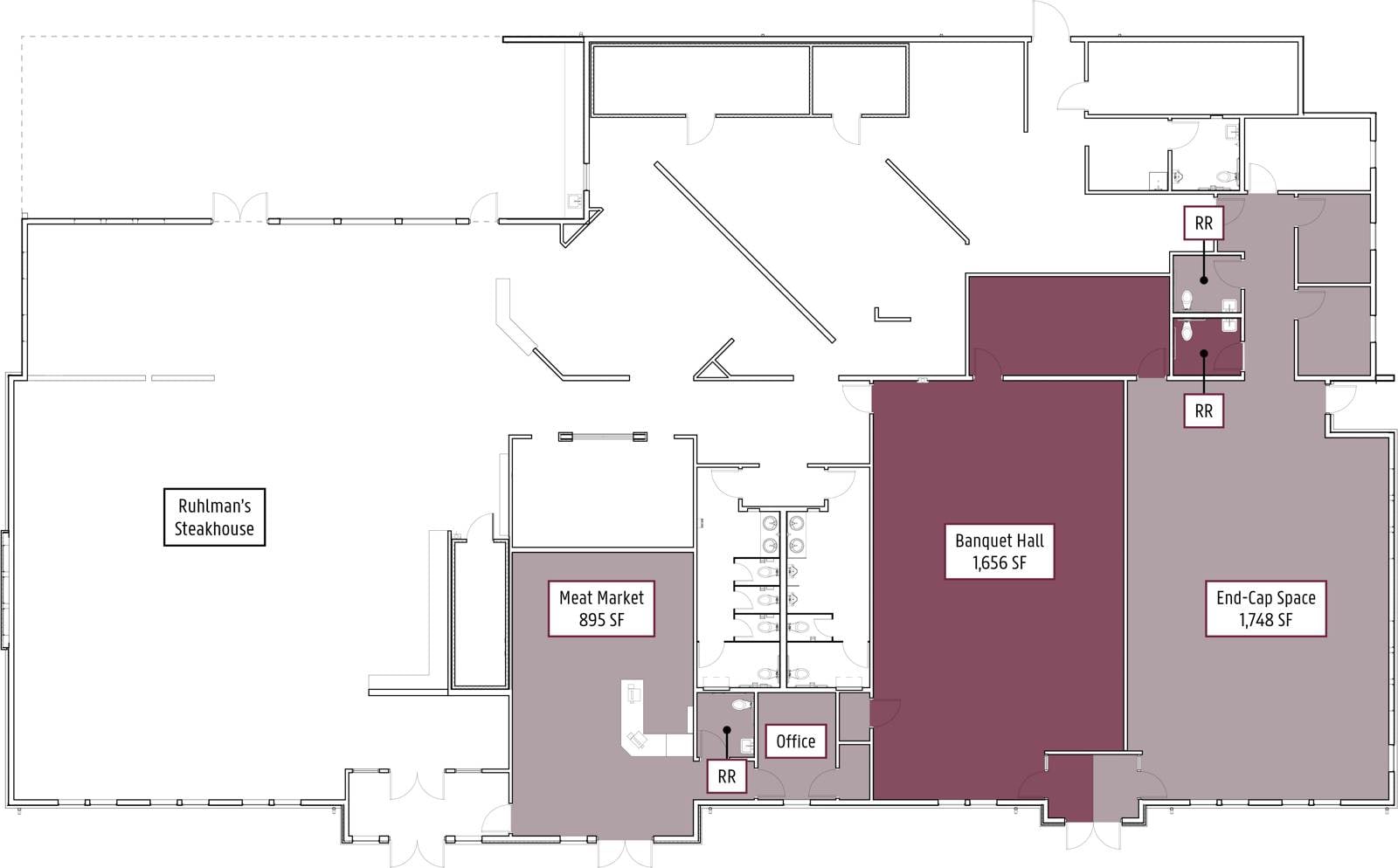
895 - 4,299 sqft

Lease Price

Contact Broker For Pricing
View Floor Plans
Brochure
Map
Retail For Lease - Available January 2026
Rare chance to plug into an established draw and add a complementary use to an already dynamic, charming small-town district
Join Oxbow Crossing, Ashland’s premier mixed-use development
Get in touch
Austin Obermeyer
Austin Obermeyer
Become apart of the community that Ruhlman’s Steakhouse, Ashland Brewing Company, Glacial Till, Cellar 426 and Fariner Bakery call home.
Ashland is quickly becoming one of the most soughtafter destinations for a night out in East Nebraska.

Minimum Space Available

895 sqft

Total Space Available

4,299 sqft
Banquet Hall
1,656 sqft

Status

Available

Lease Type

Direct

Meat Market
895 sqft

Status

Available

Lease Type

Direct

End-Cap Space
1,748 sqft

Status

Available

Lease Type

Direct

Lease Type

Direct

Lease Rate

Contact Broker For Pricing
FP
Get in touch
Austin Obermeyer
Austin Obermeyer