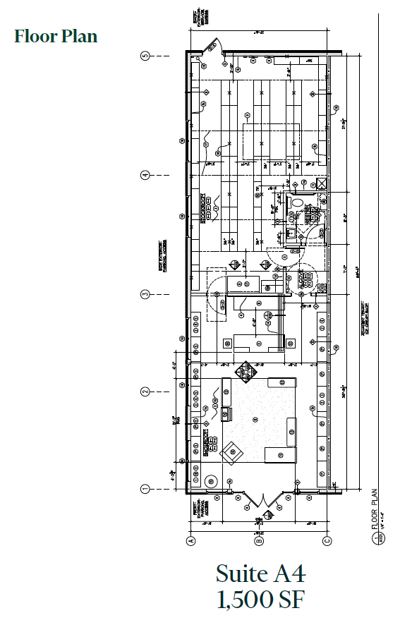
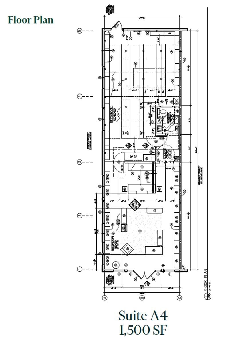
1,500 SF Retail For Lease in Gainesville, FL 3443 Southwest Archer Road
Gainesville, FL 32608
For Lease
1,500 sqft
Lease Price
Contact Broker For Pricing
View Floor Plans
Brochure
Map
Retail For Lease - Available January 2026
1,500 SF Retail For Lease in Gainesville, FL
Get in touch
Jason Hurst
Damaris Arroyo
Prime Retail/Office Availability
Suite A4 offers a highly visible and accessible location along one of
Gainesville’s most heavily traveled corridors, delivering consistent daily
traffic and exceptional exposure (Archer Road: 48,500 ADT).
Suite A4 offers a highly visible and accessible location along one of
Gainesville’s most heavily traveled corridors, delivering consistent daily
traffic and exceptional exposure (Archer Road: 48,500 ADT).
Premier Frontage on SW Archer Road
Benefit from maximum visibility on one of the city’s leading arterial
roads, surrounded by strong commercial activity and high-volume
consumer destinations.
High-Impact Signage Opportunities
Take advantage of both monument signage and building façade
signage, ideal for businesses seeking strong brand presence and
immediate recognition from passing traffic.
Unmatched Convenience
Steps away from top-performing shopping, dining, banking, and
service-oriented businesses that draw customers from across
Gainesville and neighboring communities. Located one half mile from
the University of Florida (55,900 students).
Effortless Parking
Enjoy direct, easy parking located right at the suite entrance, with
additional overflow parking available for peak hours and high-traffic
periods.
Benefit from maximum visibility on one of the city’s leading arterial
roads, surrounded by strong commercial activity and high-volume
consumer destinations.
High-Impact Signage Opportunities
Take advantage of both monument signage and building façade
signage, ideal for businesses seeking strong brand presence and
immediate recognition from passing traffic.
Unmatched Convenience
Steps away from top-performing shopping, dining, banking, and
service-oriented businesses that draw customers from across
Gainesville and neighboring communities. Located one half mile from
the University of Florida (55,900 students).
Effortless Parking
Enjoy direct, easy parking located right at the suite entrance, with
additional overflow parking available for peak hours and high-traffic
periods.
Minimum Space Available
1,500 sqft
Total Space Available
1,500 sqft
Lease Type
Direct
Lease Rate
Contact Broker For Pricing
Lease Rate Type
Modified Gross (MG)
Get in touch
Jason Hurst
Damaris Arroyo