Rare Junior Box Retail Space 12977 West Center Road

Omaha, NE 68144

For Lease

21,854 sqft

Lease Price

Contact Broker For Pricing
View Floor Plans
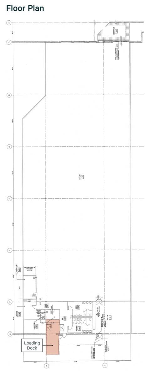
FP 2
FP
Brochure
Map
Retail For Lease - Available Immediately
Located in High-Traffic Shopping Center
Master lease expires August 31, 2031
Join Marshalls, HomeGoods, Skechers, The Tile Shop, House of J and Walgreens
Neighboring major retailers – At Home, Planet Fitness, Aldi and Dave & Buster’s
Traffic counts at 132nd & W Center Road − 56,528 VPD (2023)
Get in touch
Jami Heidemann
Jami Heidemann
Dan Fishburn
Dan Fishburn
132nd Street & W Center Road

Total Space Available

21,854 sqft

Lease Type

Direct

Lease Rate

Contact Broker For Pricing
FP 2
FP
Get in touch
Jami Heidemann
Jami Heidemann
Dan Fishburn
Dan Fishburn