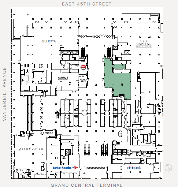
200 Park Avenue
New York, NY 10017
For Lease
4,002 sqft
Lease Price
Contact Broker For Pricing
View Floor Plans
Brochure
Map
Retail For Lease
Get in touch
Andrew Goldberg
AG
Jared Lack
Jordan Kaplan
JK
Premises:
Ground Floor: 4,002 SF
Possession: Immediate
Ceiling Height: 16'
Ground Floor: 4,002 SF
Possession: Immediate
Ceiling Height: 16'
Total Space Available
4,002 sqft
Lease Type
Direct
Lease Rate
Contact Broker For Pricing
Get in touch
Andrew Goldberg
AG
Jared Lack
Jordan Kaplan
JK