99 2nd Avenue
New York, NY 10003
For Lease
2,200 - 4,700 sqft
Lease Price
Contact Broker For Pricing
View Floor Plans
Brochure
Map
Retail For Lease
Get in touch
Jared Lack
Sam Botel
SB
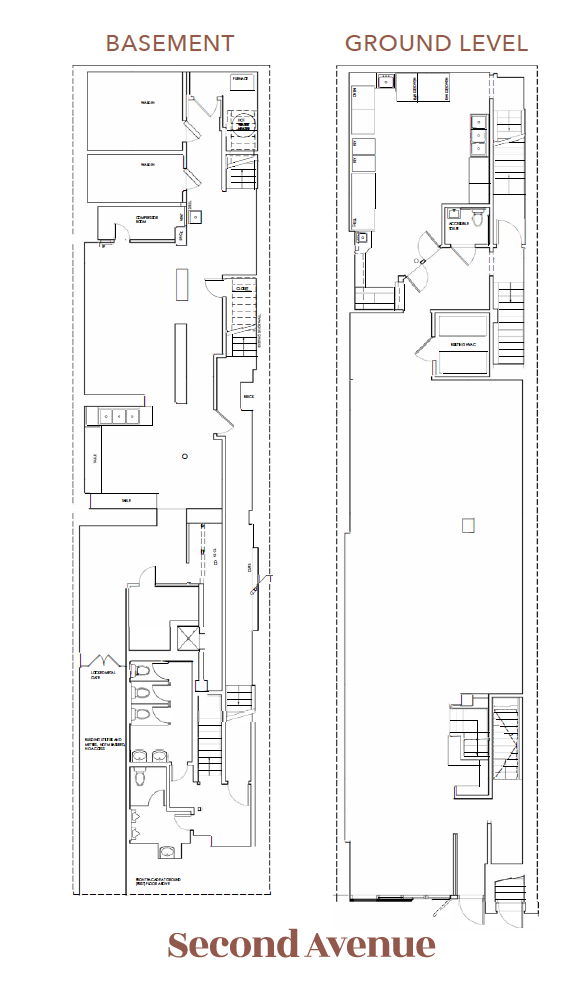
Premises:
Ground Floor: 2,400 SF
Basement: 2,300 SF
Frontage: 25 FT
Ceiling Heights: 9 FT
Possession: Immediate
Term: Negotiable
Ground Floor: 2,400 SF
Basement: 2,300 SF
Frontage: 25 FT
Ceiling Heights: 9 FT
Possession: Immediate
Term: Negotiable
Between 5th and 6th Streets
Minimum Space Available
2,200 sqft
Total Space Available
4,700 sqft
Lease Type
Direct
Lease Rate
Contact Broker For Pricing
Get in touch
Jared Lack
Sam Botel
SB