1288 Ala Moana Blvd Ste 120 | Tango Cafe 1288 Ala Moana Boulevard
Honolulu, HI 96814
For Lease
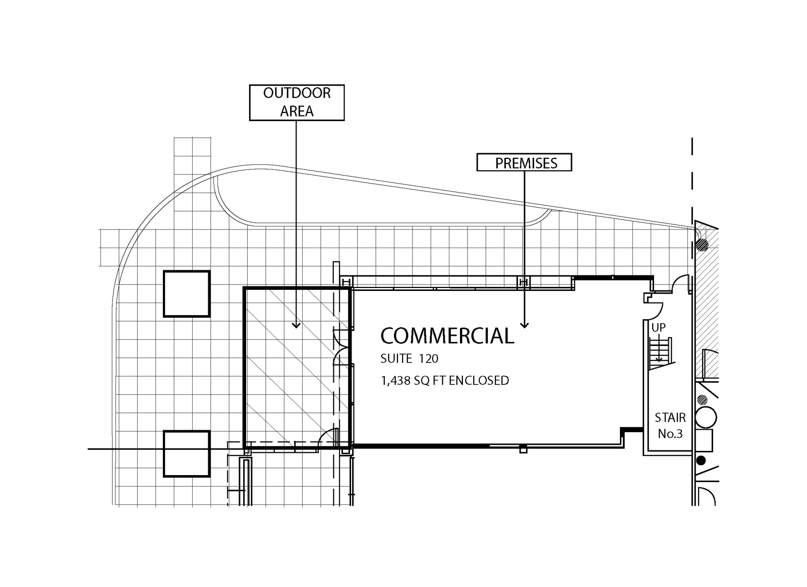
1,438 sqft
Lease Price
$6.50/sqft/mo
View Floor Plans
Brochure
Map
Retail For Lease - Available February 2026
Lease Assignment & Sale of FF&E | Tango Contemporary Cafe
Bright, clean, turnkey restaurant with excellent location, high foot traffic and strong visibility
Easy and convenient parking within the property - the location provides extremely easy parking for tenants, with full validation
A well established clientele, comprising of Hokua residents and local guests from nearby condominiums and apartments in this densely populated
Turn-key restaurant with minimal changes required to freshen the dining area. No permit requirements or long delays for new owners
Attractive outdoor seating area adds to the vibrant ambience of the restaurant - and increases visibility to drive-by potential customers
Get in touch
Jie Xie
Lic: RS-73904
CBRE is pleased to announce the sale of FF&E and lease assignment of a cafe situated off the bustling Ala Moana Boulevard within the prestigious Hokua condominium complex, benefitting from exceptional visibility and a sophisticated ambiance, this restaurant draws in a discerning clientele.
This prime location offers unparalleled access to both local residents and the significant tourist traffic flowing through the Ala Moana area, making it a highly desirable asset. The sale encompasses a meticulously curated collection of high-end FF&E, reflecting commitment to quality and design, along with the valuable leasehold interest, presenting a unique opportunity for a new operator to step into a turn key, established restaurant space.
This prime location offers unparalleled access to both local residents and the significant tourist traffic flowing through the Ala Moana area, making it a highly desirable asset. The sale encompasses a meticulously curated collection of high-end FF&E, reflecting commitment to quality and design, along with the valuable leasehold interest, presenting a unique opportunity for a new operator to step into a turn key, established restaurant space.
Hokua condominium complex, Honolulu, Hawaii
Minimum Space Available
1,438 sqft
Total Space Available
1,438 sqft
Lease Type
Direct
Lease Rate
$6.50/sqft/mo
Lease Rate Type
Triple Net (NNN)
Get in touch
Jie Xie
Lic: RS-73904