The exchange 2230 Daisy Lane

Indian Land, SC 29707

For Lease

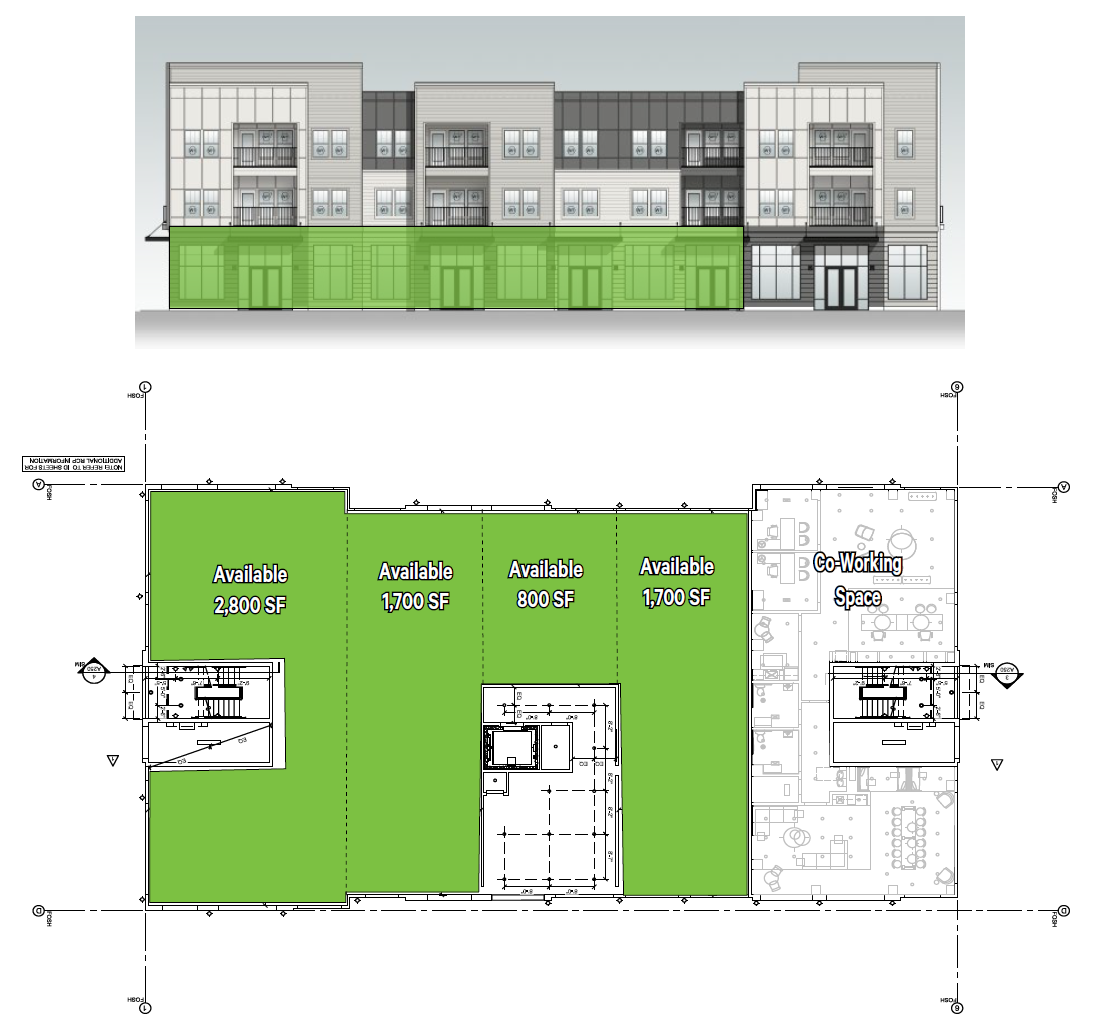
800 - 6,500 sqft

Lease Price

Contact Broker For Pricing
View Floor Plans
Brochure
Map
Retail For Lease
New Retail in Indian Land
Last retail space to be built besides the new Lowes Foods anchored center, a major traffic driver and community staple.
High-profile, luxury ground-floor retail featuring a premier endcap opportunity with large patio space.
Over 700 high-end apartment and townhome units within walking distance.
One of the regions busiest retail corridors.
1/2 mile from the MUSC Medical Campus and new Target.
Nearby retailers include: Costco, Dominos, Target, Publix, Lowes and Wahataburger.
Get in touch
Darrell Palasciano
Darrell Palasciano
Lilly Fitch
Lilly Fitch
125-acre Lowes Foods & Costco anchored mixed-use development along the highly desirable Hwy 521 corridor in Indian Land, SC.

Minimum Space Available

800 sqft

Total Space Available

6,500 sqft

Lease Type

Direct

Lease Rate

Contact Broker For Pricing
1 Mile 3 Miles 5 Miles
Population 3,894 35,744 117,494
Avg. Household Income $151,555 $160,845 $178,128
Daytime Population 3,121 37,006 197,120
Site Plan
Get in touch
Darrell Palasciano
Darrell Palasciano
Lilly Fitch
Lilly Fitch