Park Place Plaza 1501 Southeast Walton Boulevard

Bentonville, AR 72712

For Lease

1,100 - 2,550 sqft

Lease Price

$18.50/sqft
View Floor Plans
1501-201 FP
1401
1501
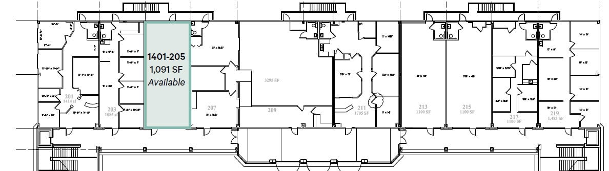
1401-205 FP
1501-205 FP
Brochure
Map
Retail For Lease - Available Immediately
Two Retail Spaces Available In Bentonville
1501-201: ±1,450 SF − 2 Offices − 2 Large Meeting/Conference Rooms − Kitchenette
1501-205: ±1,100 SF − Reception Area/Waiting Room − 4 Offices − 1 Conference Room − Kitchenette
Rate: $18.50/SF + Escalations
Fronts Walton Blvd (35,000 VPD)
TI Allowance: Negotiable
Close Proximity to I-49
Tenant Pays: Utilities, Phone/Data, Janitorial, and Pro-rata Share of Water & Trash
Elevator Access to 2nd Floor
Get in touch
David Erstine
David Erstine
Alex Reed
Alex Reed
Park Place Plaza presents a modern and well-maintained commercial building designed to accommodate a range of retail and professional office tenants. The property features an attractive facade with ample parking for customers and staff. With elevator access to the second floor, convenience is a priority for all occupants and visitors. The available suites offer versatile floor plans, including private offices, conference rooms, and kitchenettes, all within a professional setting.
Nestled in the heart of Bentonville, Park Place Plaza boasts an exceptional location on SE Walton Blvd, a major commercial artery. This prime spot offers unparalleled visibility and easy access to I-49, connecting businesses to the wider Northwest Arkansas region. The area is a hub of activity, surrounded by a strong demographic base and close to key Bentonville landmarks, including the Walmart Home Office and other corporate facilities, ensuring a steady flow of potential clientele.

Minimum Space Available

1,100 sqft

Total Space Available

2,550 sqft

Lease Type

Direct

Lease Rate

$18.50/sqft
1501-201 FP
1401
1501
1401-205 FP
1501-205 FP
Get in touch
David Erstine
David Erstine
Alex Reed
Alex Reed