Fox Point Redevelopment Opportunity 8050 North Port Washington Road

Fox Point, WI 53217

For Sale/Lease

9,800 sqft

Sale Price

$1,300,000

Lease Price

Contact Broker For Pricing
View Floor Plans
Brochure
Map
Specialty For Sale/Lease - Available March 2026
Get in touch
Yoni Zvi
Yoni Zvi
Samuel Gleischman
Samuel Gleischman
Galileo Hughes
Galileo Hughes
Colin Ryan
Colin Ryan
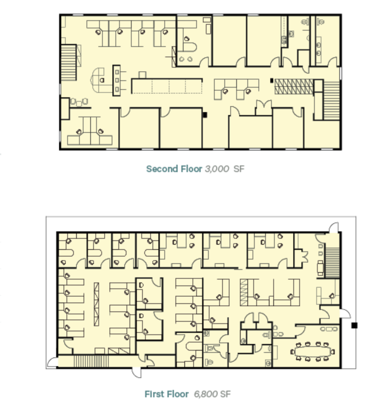
8050 N Port Washington Road currently serves as a two-level (the 3rd lower level could serve additional office needs) professional office building currently offering a total of approximately 9,800 SF. The property includes 60 surface parking stalls, secure key fob access, operable second floor windows, and a mix of private offices, open work areas, and conference rooms.

Total Space Available

9,800 sqft

Lease Type

Direct

Sale Price

$1,300,000

Lease Rate

Contact Broker For Pricing

Lease Rate Type

Triple Net (NNN)
1 Mile 3 Miles 5 Miles
Population 5,950 34,413 120,954
Daytime Population 5,397 37,169 137,704
Median Household Income $139,808 $111,860 $77,790
Floor plan
Get in touch
Yoni Zvi
Yoni Zvi
Samuel Gleischman
Samuel Gleischman
Galileo Hughes
Galileo Hughes
Colin Ryan
Colin Ryan